Sold

An opportunity doesn’t knock, it only...

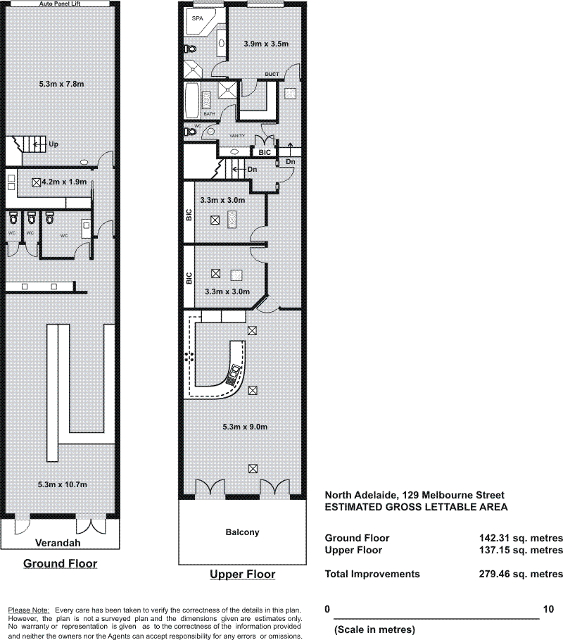
A fantastic mixed-use investment opportunity in one of Adelaide’s most sought-after locations being. 129 Melbourne Street, North Adelaide. A precinct known for its diversity in commercial land use including retail shops, pubs, cafés, offices and medical practices, it also boasts a surrounding medium-high density residential community. A Torrens- titled allotment with a total building area of 280sqm* distributed over 2 levels and a combined passing rental income of $104,000 p.a. + GST (Gross Lease)

Ground Floor
- Spot & Co Whiskey Cocktail Lounge
- Freshly renovated cocktail lounge/ bar with fantastic us of exposed brick & polished concrete flooring
- Two freshly renovated bathrooms, a unisex bathroom with floor-to-ceiling marble-look tiles and marble vanity plus a Disabled bathroom located adjacent
- Kitchen area plus rear storage/ garage area

First Floor: Residential
- 3 generous-sized bedrooms, master with walk-in-robe and ensuite consisting of a large spa bath & shower
- Bedroom 2 and 3 with Built-in-robes
- Light-filled Kitchen with white timber cupboards and granite bench tops overlooking the living area
- Main bathroom with bath and shower, separate w/c and laundry area
- Two double doors leading out to the balcony overlooking Melbourne Street
- Ducted reverse cycle A/C throughout

Features to mention include:
- One lease with tenancy occupying the whole building
- Lease Term 1/09/2015 – 31/08/2020 (plus 5 year option)
- Passing rental of $104,000 p.a. + GST (Gross Lease)
- 4 % fixed annual increases ($108,160 as @ 1/09/17) and market review @renewal
- Depreciation Benefits (New fit-out)
- Zoned: Main Street (Melbourne East, MS2).
- Rear Lane Access via Bower St
- Torrens Titled 167sqm allotment
168 m2
Address 129 Melbourne Street, North Adelaide
Price SOLD
Property Type Commercial
Property ID 1390
Category Retail, Offices
Land Area 168 m2
Floor Area 280 m2

Agent Details

Nick Mastrangelo photo

Nick Mastrangelo

0401 790 753
View Profile
Pasquale Mastrangelo photo

Pasquale Mastrangelo

0409 465 863
View Profile