SPACIOUS SHOP IN DOMINANT SHOPPING CENTRE- 160 SQM (M)

Here is a Genuine Opportunity to move your business into a busy prominent Shopping Centre with neighbours like Coles, The Cheesecake Shop, Bakers Delight, KFC, Dan Murphy's and more for surprisingly cheap rent.

Located in a high traffic and suburban area it attracts a large number of potential customers!

This tenancy comprises of the following:

-Ex Fitness Gym

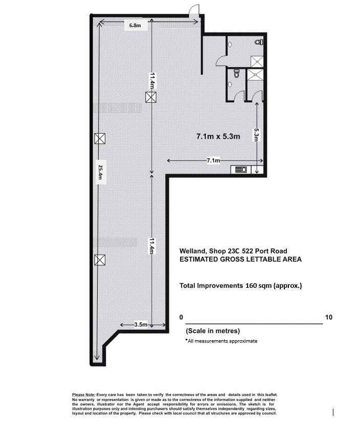
-Area: 160 SQM

-Located next to Pizza Hut

-External Tenancy - suits many uses

-Immediate access to Port Rd

-Ample carp park area

-Attractive Term

-Flexible Owner

INSPECTION A MUST!

If you have any questions or would like to inspect, please do not hesitate to contact Pasquale Mastrangelo on 0409 465 863 or the Mastracorp Landline on 08 8212 0140.

 

 

Address Shop 23C, 522 Port Road
Price 55,000 + Outgoings + GST
Property Type commercial
Property ID 1427
Category Retail
Floor Area 322 m2

Quick Links

Agent Details

Pasquale Mastrangelo photo

Pasquale Mastrangelo

0409 465 863
View Profile