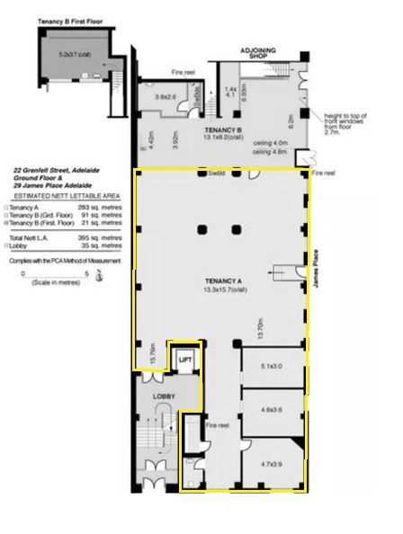
PRIME CBD RETAIL SPACE! - 283 SQM APPROX.(L)

Situated on Adelaide's busiest laneway at the entrance to South Australia's prime shopping district.

This tenancy has lots of potential with high foot traffic it is ideal for retail, entertainment or a licensed venue. 

Features: 

283 SQM (APPROX.)

GROUND FLOOR TENANCY

PRIME CORNER LOCATION

OPEN RETAIL SPACE + 3 LARGE ROOMS

BRAND EXPOSURE

HIGH CEILINGS

FACILITIES AS SUITED

FLEXIBLE LEASE TERMS & CONDITIONS

INSPECTION A MUST!

If you would like to inspect the property or for more information please call Pasquale Mastrangelo on 0409 465 863 or the Mastracorp office on 8212 0140

Address 22 Grenfell St
Price CONTACT AGENT
Property Type commercial
Property ID 1617
Category Retail, Other

Quick Links

Agent Details

Pasquale Mastrangelo photo

Pasquale Mastrangelo

0409 465 863
View Profile
Dion Mastrangelo photo

Dion Mastrangelo

0431 576 848
View Profile