ULTIMATE RESIDENTIAL DEVELOPMENT SITE

Mastracorp is proud to present this outstanding Residential development site in the sought after suburb of Woodville, approximately ten (10) kilometres from the Adelaide CBD.

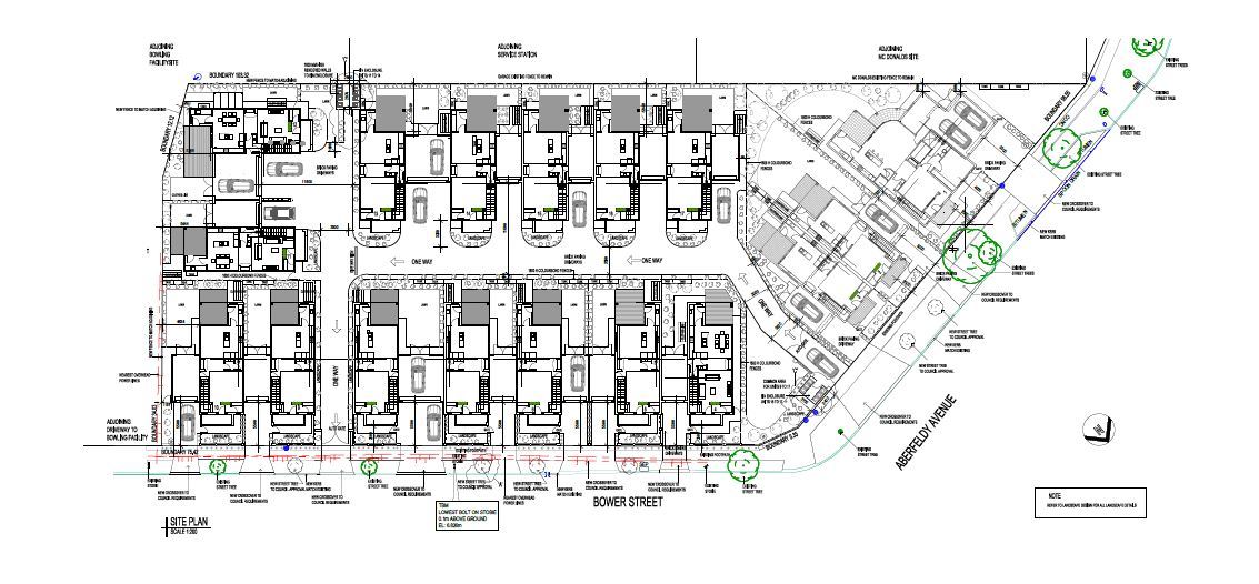
- Rare development opportunity

- Residential Zoning (R'16)

- 4,405 sqm (approx.)

- Comprising of 4 Titles

- Desirable corner location on Aberfeldy Avenue & Bower Street, just off of Port Road

- Near to facilities and amenities such as Bunnings Warehouse, Queen Elizabeth Hospital, Retail/Shopping/Cafes, public transport, Adelaide CBD and Airport

- Sold with planning approval (stcc)

For further information or to arrange an inspection please contact Pasquale Mastrangelo 0409 465 863 or Nick Mastrangelo 0401 790 753 or Mastracorp land line 08 8212 0140

Address Corner Of Aberfeldy Avenue & Bower Street
Price Contact Agent
Property Type commercial
Property ID 1654
Category Land/Development
Land Area 4,405 m2

Quick Links

Agent Details

Pasquale Mastrangelo photo

Pasquale Mastrangelo

0409 465 863
View Profile
Nick Mastrangelo photo

Nick Mastrangelo

0401 790 753
View Profile