LAST SHOP LEFT! GET IN FAST! - UNDER CONTRACT

LAST SHOP LEFT! GET IN FAST! - 72 SQM (APPROX)

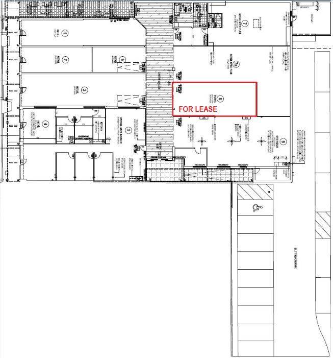
Mastracorp is proud to bring to the market the last shop left for lease in Highgate Shopping Centre. This modern premises is surrounded by a great tenancy mix inc. barber, florist, cafe, physio, podiatrist, fitness fanatic and travel agency.

GREAT LOCATION!

72 SQM (APPROX.)

AMPLE CAR PARKING

REVERSE CYCLE AIR-CONDITIONING

LANDLORD INCENTIVES ( RENT FREE PERIOD AVAILABLE)

MODERN KITCHEN

FLEXIBLE LEASE TERMS & CONDITIONS

INSPECTION A MUST!

If you have any further enquiries or to inspect, please feel free to contact Pasquale Mastrangelo on 0409 465 863 or the Mastracorp Landline on 08 8212 0140

Address Shop 8A 453-459 Fullarton Rd, Highgate
Price Leased
Property Type Commercial
Property ID 1670
Category Retail, Medical/Consulting, Offices

Agent Details

Pasquale Mastrangelo photo

Pasquale Mastrangelo

0409 465 863
View Profile