FANTASTIC RETAIL/OFFICE OPPORTUNITY

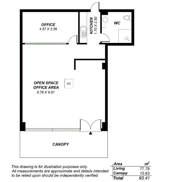
- 78 sqm (approx.) including front office/waiting area and unisex amenities 

- Ground floor exposure perfect for retail and office

- Professional fit out and pleasant environment

- Community titled ground floor unit

- Ample street parking

- Sold as vacant possession

Inspection a must!

If you would like to inspect the property please contact Nick Mastrangelo on 0401 790 753 or Mastracorp Land line 08 8212 0140.

Address Shop 5, 5-19 Goodall Pde, Mawson Lakes
Price SOLD
Property Type Commercial
Property ID 1724
Commercial Listing Type Sale
Category Offices, Retail, Medical/Consulting
Office Area 78m2
Total Area 78m2

Agent Details

Nick Mastrangelo photo

Nick Mastrangelo

0401 790 753
View Profile