BARBER SHOP OPPORTUNITY

Opportunity for a Barber Shop in Welland Plaza!

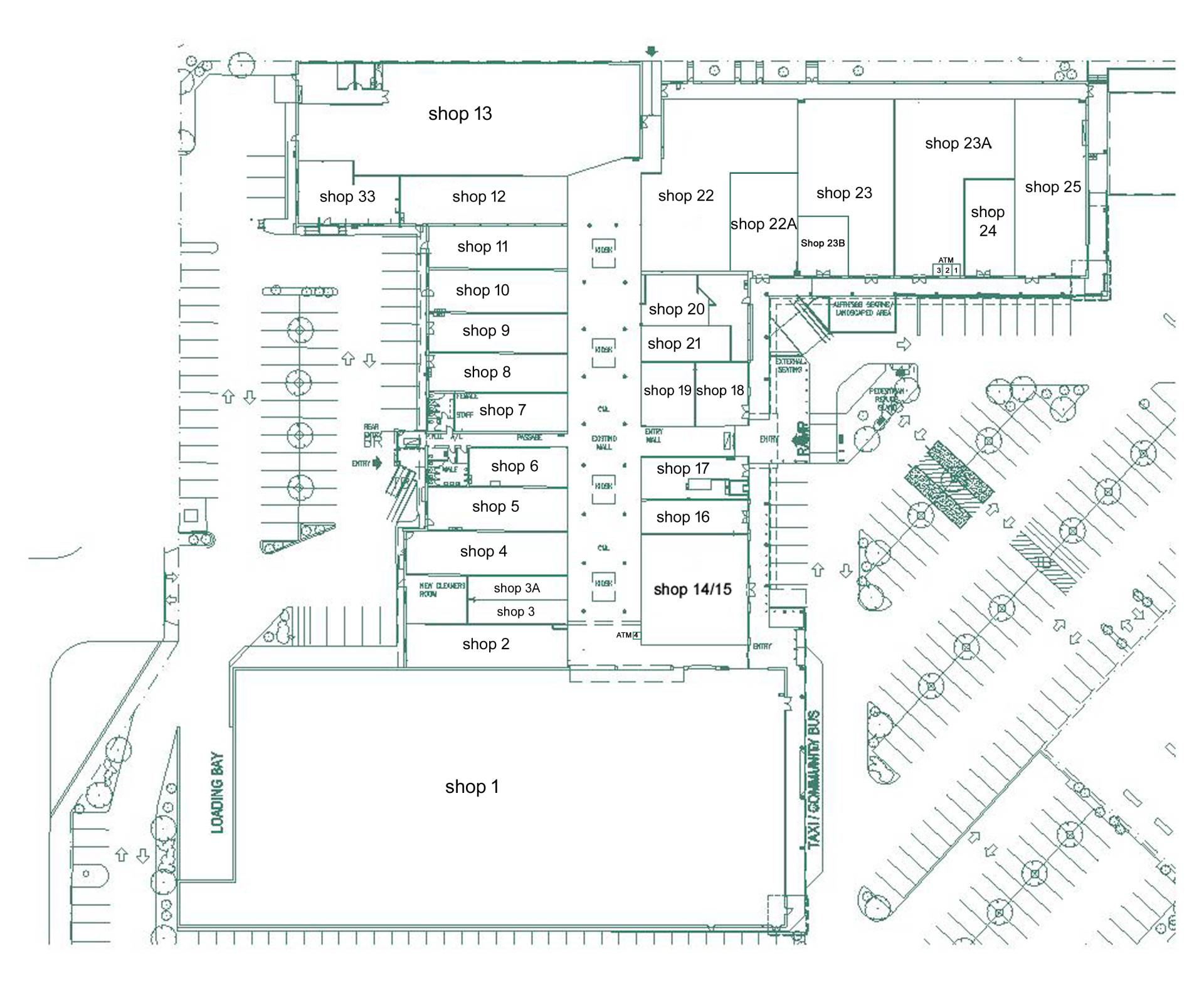
Here is a Genuine Opportunity to move your business into a busy prominent Shopping Centre with neighbours like Coles, The Cheesecake Shop, Bakers Delight, KFC, Dan Murphy's and more for surprisingly cheap rent. 

Located in a high traffic and suburban area it attracts a large number of potential customers! 

50 SQMS APPROX.

INTERNAL MALL TENANCY

ACCESS TO PORT ROAD

AMPLE CAR PARKING

FLEXIBLE LEASE TERMS

INSPECTION A MUST!

If you would like to inspect this property, please do not hesitate to contact Pasquale Mastrangelo on 0409 465 863, or the Mastracorp Landline on 08 8212 0140.

Address Shop 3, 522 Port Road, Welland
Price $25,000p.a. + Outgoings + GST
Property Type Commercial
Property ID 2150
Category Retail
Office Area 50m2

Agent Details

Pasquale Mastrangelo photo

Pasquale Mastrangelo

0409 465 863
View Profile