FOR SALE $1,200,000

Modern Warehouse/ Showroom with Office

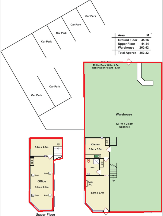
- Total Building Area of 361 sqm*

- 99 sqm* Office distributed over two levels, ducted Air Conditioning with a separate Split System in the Larger Office/ Boardroom upstairs, Stylish Kitchen and Uni-sex Bathroom.

- 262 sqm* Warehouse/ Showroom

- Great Port Road Exposure – 42,500 Vehicles Passing Every Day (DPTI, 2020)

- Stand-out Corner Frontage on Port Road, with Large Car Park and High Clearance Loading and Roller Door Access off Howards Road

- Zoned Employment (Refer to Information Memorandum and Zone Extract for more information)

- Tenanted by Abbott Stationers Pty Ltd with a rental income of $62,000 p.a (Gross Lease) expiring 31st May 2024.

Within close proximity to both the Port River Expressway and the South Road Superway connecting Adelaide’s North-South Major Transport Corridor.

Sold As: Tenanted Investment

For more information, please contact Pasquale Mastrangelo on 0409 465 863 or Nick Mastrangelo on 0401 790 753.

 

 

515 m2
Address 738 Port Road, Beverley
Price SOLD
Property Type Commercial
Property ID 2167
Category Industrial/Warehouse, Showrooms/Bulky Goods
Land Area 515 m2
Office Area 99m2
Warehouse Area 262m2

Agent Details

Pasquale Mastrangelo photo

Pasquale Mastrangelo

08 8212 0140
View Profile
Nick Mastrangelo photo

Nick Mastrangelo

0401 790 753
View Profile