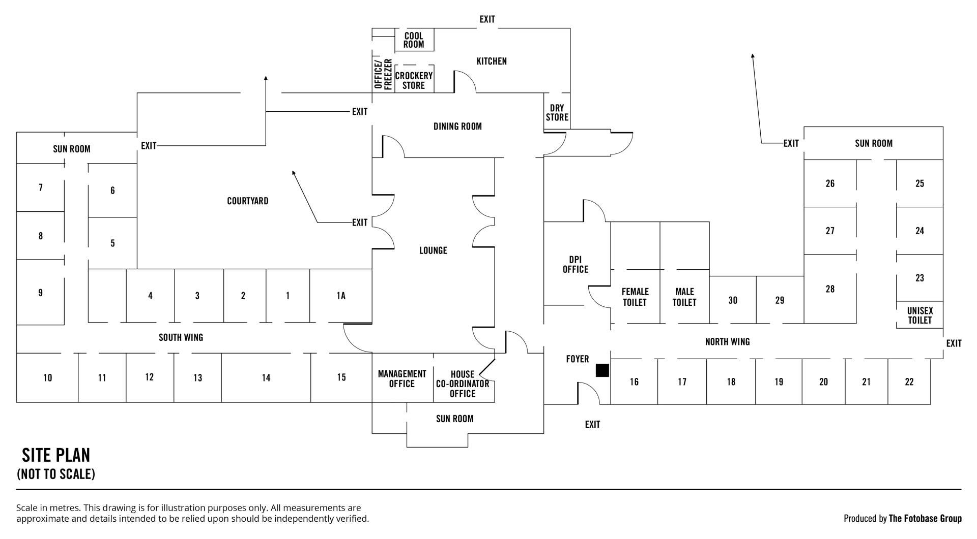
Substantial Rooming Facility with Development Upside

Located on approximately 4,000sqm allotment with 3 street frontages to Aikman Crescent, Hawdon Street & Davison Street. Zoned General Neighbourhood with development and/or land uses associated with "Low-rise, low and medium-density housing that supports a range of needs and lifestyles located within easy reach of services and facilities. Employment and community service uses contribute to making the neighbourhood a convenient place to live without compromising residential amenity".

- 3 Street Frontages

- 32 metres approx. Aikman Crescent

- 63 metres approx. Hawdon Street

- 64 metres approx. Davison Street

- 4,000 sqms approx. Site Area

- 1,800 sqms approx. Building Area

A total building area of approximately 1,800sqms, previously used as institutional housing with 30 rooms, all with built in robes, bathroom amenities and split system air conditioning. 14 of feature a private ensuite bathroom and 16 rooms with a shower cubicle and basin.

The property is also equipped with a large commercial kitchen featuring:

- Stainless steel benches and sinks

- 2x Commercial Gas Stove

- Deep Fryer

- Dishwasher

- Overhead Storage

- Cool room and walk in freezer

- Pantry and crockery storage rooms

Additional facilities inside the complex include:

- Large air-conditioned common area

- 2 smaller lounge/sunrooms

- 2 front offices

- Large foyer/reception area

- Large admin office

- Walk in linen storage + cleaners storage room

External facilities on the property include:

- Undercover outdoor living area

- Fully equipped laundry

- 4 x 22,000 litre rainwater tanks

For further information please contact the agents Pasquale Mastrangelo on 0409 465 863, Nick Mastrangelo on 0401 790 753 or the Mastracorp Office on (08) 8212 0140.

30 4,000 m2
Address 36-38 Aikman Cres, Whyalla Norrie
Price Contact Agent
Property Type Commercial
Property ID 2183
Category Land/Development, Offices, Other
Land Area 4,000 m2
Office Area 1,800m2

Agent Details

Pasquale Mastrangelo photo

Pasquale Mastrangelo

08 8212 0140
View Profile
Nick Mastrangelo photo

Nick Mastrangelo

0401 790 753
View Profile