SECURELY LEASED INVESTMENT + CORNER DEVELOPMENT SITE ON ONE TITLE

AUCTION - Wednesday 29th June 2022 @ 11am (Unless Sold Prior)

TWO BIRDS WITH ONE STONE!

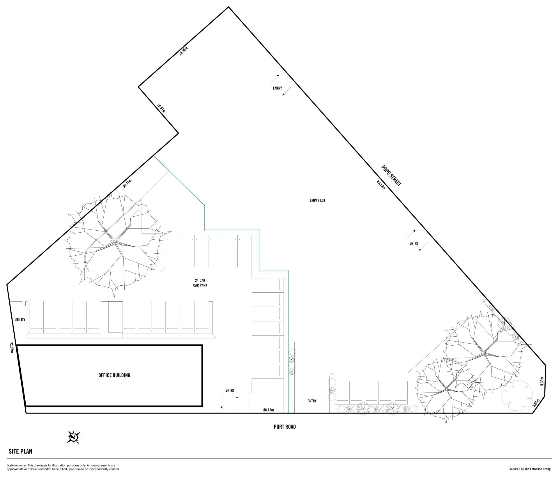
In a prime location with close access to both the Port River Expressway and South Road Superway connecting Adelaide’s North-South Main Transport Corridor, a fantastic opportunity to secure a low-risk multi-tenanted investment plus a development site of generous proportions boasting a ‘landmark’ Port Road position on the corner of Port Road and Pope Street. Contained within one Certificate of Title and total land holding of 3,844sqm, it is best described as an offering of two separate portions.

Portion A – Newly Constructed Two Story Commercial Building

-          Total Building Area: 662sqm

Tenancy 1 Romaldi Constructions Pty Ltd: 442sqm*

Tenancy 2 Aspec Homes Pty Ltd: 125sqm*

Tenancy 3 Eco Smart Solar Energy Pty Ltd: 95sqm*

-          Passing rental income of $186,000 p.a. + GST (gross)

-          A prominent and eye-catching new commercial building with no setback off Port Rd to maximize the exposure to the 43,900* vehicles passing daily (DiT, 2019)

-          Large Scale Solar Panel system (38KW System Size with a 30KW Inverter )

-          Ample allocated and customer car parking with two-way access driveway.

-          Portion A consuming approx. 1,488sqm of the total site.

Portion B – Corner Development Site of approx. 2,356sqm*

-          Scope to further develop the corner portion with an approx. area of 2,356sqm (s.t.p.c)

-          Zoned: Employment (E)

-          Corner/ Dual frontage on Port Road and Pope Street; A trademark Beverley location

-          3 existing driveway access points, 1 on Port Road and 2 on Pope Street

AUCTION - Wednesday 29th June 2022 @ 11am (Unless Sold Prior)

To organise a private inspection and/or copy of an Information Memorandum with Leases, please click on the enquiry link and leave your details with any requests/ questions. Alternatively, feel free to Call Pasquale 0409465863 or Nick 0401790753.

24 3,844m2
Address 708 Port Rd, Beverley
Price SOLD
Property Type Commercial
Property ID 2215
Commercial Listing Type Sale
Category Offices, Medical/Consulting, Showrooms/Bulky Goods
Land Area 3,844m2
Office Area 662m2
Total Area 662m2

Agent Details

Nick Mastrangelo photo

Nick Mastrangelo

0401 790 753
View Profile
Pasquale Mastrangelo photo

Pasquale Mastrangelo

0409 465 863
View Profile