36 Henry Street, Payneham

SOLD SOLD SOLD SOLD AT AUCTION- CALL FOR A MARKET APPRAISAL OR CHAT ALL THINGS PROPERTY - NICK 0401790753

Get Corner Creative in Prime Position

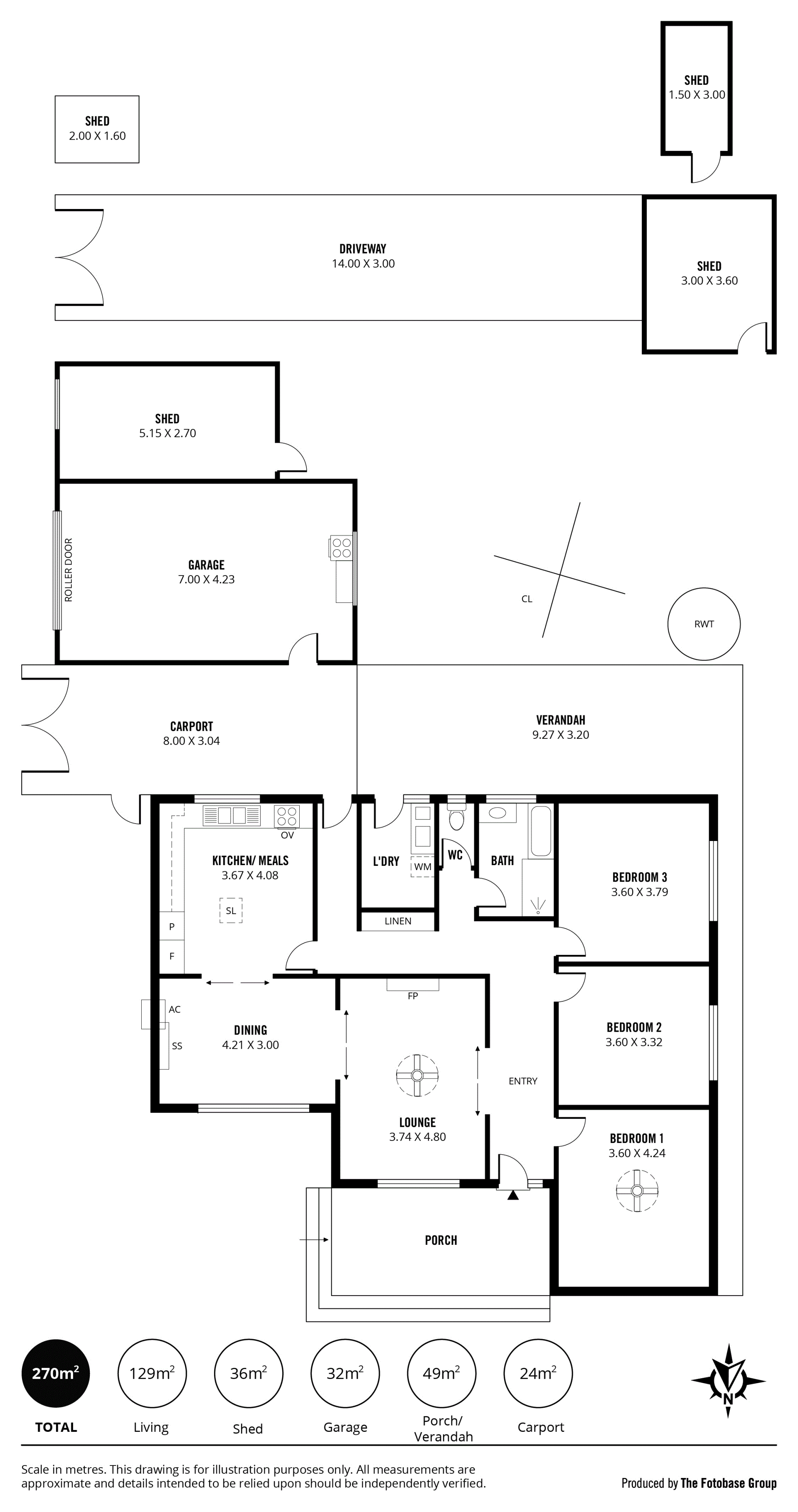
Positioned in a peaceful family pocket with low thoroughfare traffic without compromising on the convenient lifestyle that comes with being located between Glynburn and Portrush Roads. Mastracorp is proud to offer this basket range home, circa 1965, enriched with the original character of it’s era and a European foot-print stamped over the land and enjoyed by a family of multiple generations. A rare corner allotment opportunity of grand proportions, boasting 885sqm with frontages to Henry and Walsh Street of 18.3 metres* & 48.8 metres* respectively. It is truly an exciting redevelopment prospect with multiple options of strategy to value-add and generate a return on your investment (Subject to Planning Consent).

Property features to note include:

  • Circa 1965 solid brick home
  • 3 Large Bedrooms, master with ceiling fan
  • Bathroom with original bath and terrazzo floors, separate w/c.
  • Functional and natural light-filled kitchen with solid timber cupboards
  • Classic 1965 basket-range home layout with separate but connecting lounge room, formal dining and open plan kitchen used as the informal dining area.
  • Laundry exits out to the back yard, sheds and garden area beyond
  • Separate single garage of the same solid brick construction accessed from Walsh Street.
  • Total Land: 885sqm (approx.)
  • Corner Allotment with dual frontages (18.3m* & 48.8m*)
  • Zoned as General Neighbourhood within the City of Norwood, Payneham and St Peters

For the investor/ developers, there are numerous strategies that you could employ on the land (subject to obtaining the necessary Planning Consent) which include:

  1. “The corner cut-off” sub-division, keeping the existing house intact and creating allotment(s) at the rear.
  2. A complete re-development of the site, demolishing the home and looking at producing 2-3 allotments
  3. Rent out the home and “land-bank” as land values continue to appreciate for a future development

OR

For those that appreciate the traditional use of large allotments can renovate, update and extend to suit a modern lifestyle whilst enjoying the land’s rich-nutrients to grow your own organic vegetables and keep chickens.

Close amenities and landmarks include Firle Shopping Centre, the Norwood Parade retail and café precinct, an abundance of schools, public transport options and recreational parks. It’s easy to see why Payneham is one of the most sought-after locations in Adelaide’s eastern suburbs.

*approx.




3 1 2 885 m2
Address 36 Henry Street, Payneham
Price SOLD
Property Type Residential
Property ID 2344
Category House
Land Area 885 m2
Floor Area 270 m2

Agent Details

Pasquale Mastrangelo photo

Pasquale Mastrangelo

08 8212 0140
View Profile
Nick Mastrangelo photo

Nick Mastrangelo

0401 790 753
View Profile