FOR LEASE - A GREAT OPPORTUNITY

NEW LEASING OPPORTUNITY 

PRIME LOCATION

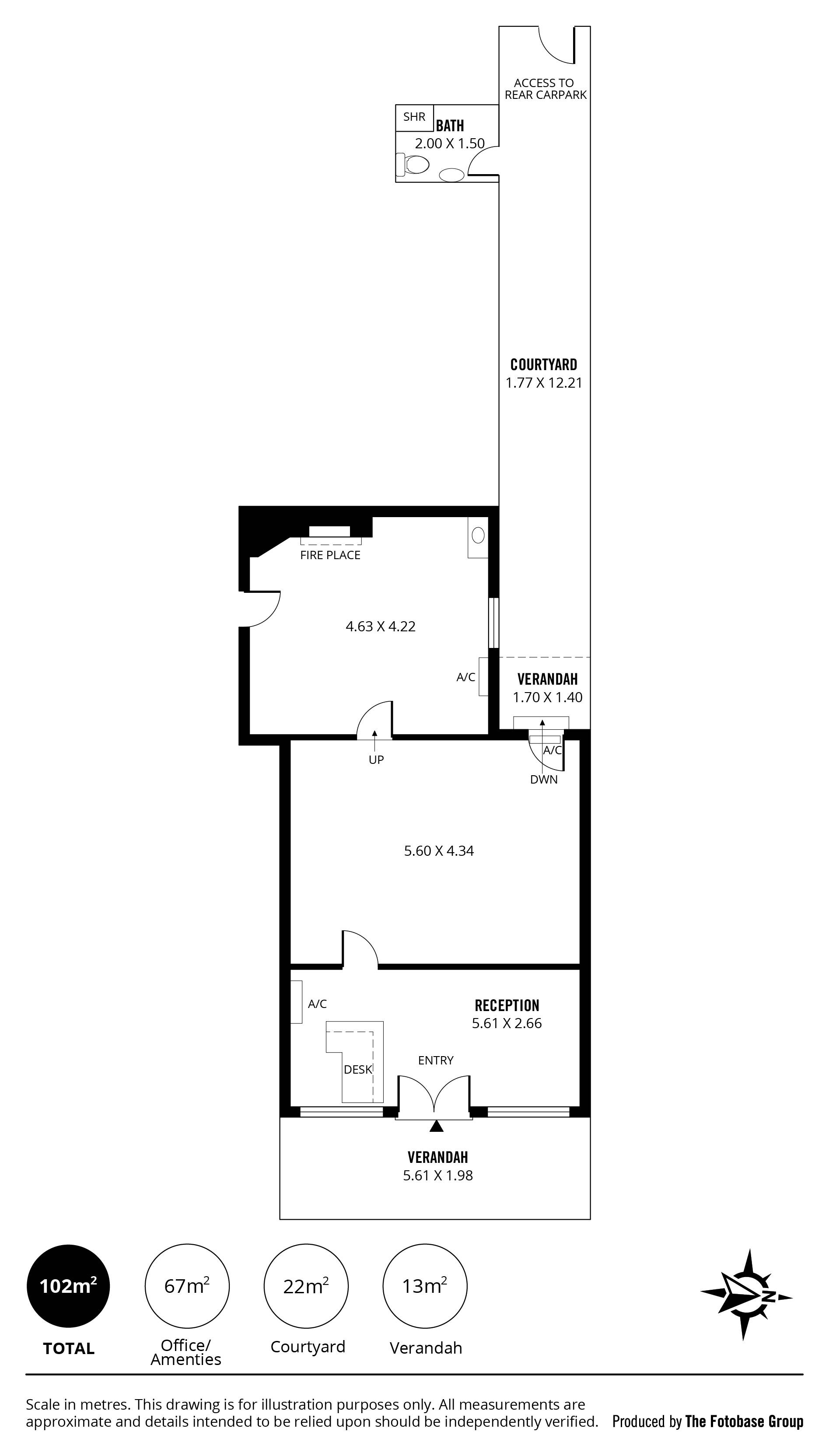
OFFICE SPACE / SEPERATE CONSULTING ROOM / GREAT LAYOUT / REAR TOILET & SHOWER AREA - SEE FLOORPLAN

PERFECT FOR OFFICE / BUSINESS / SUIT MANY USES / INSPECTION A MUST

102SQM (APPROX) 

CAR PARKING AT REAR (X2)

If you would like to inspect the property, please do not hesitate to contact Elio Mastrangelo on elio@mastracorp.com.au or Mastracorp Landline on (08) 8212 0140

2
Address 265 Fullarton Road, Parkside
Price $ 20,999.00 + GST + Outgoings + GST
Property Type Commercial
Property ID 2359
Category Offices, Medical/Consulting
Office Area 67m2

Agent Details

Elio Mastrangelo photo

Elio Mastrangelo

08 8212 0140
View Profile