SECURELY LEASED INVESTMENT OPPORTUNITY - SA ICON

Successfully Under Contract 

A Bluechip investment opportunity securely leased and home to South Australia’s iconic and award-winning chocolate makers, Bracegirdle’s. A decade-long occupancy as Bracegirdle’s main headquarters and streamlined dessert production, administration and distribution, they are able to efficiently service their national demand as well as their own three dessert cafe locations in South Australia. This includes one onsite and two other thriving Bracegirdle cafe's in Blackwood and McLaren Vale.

Centrally located and just 500 metres from Adelaide’s North-South Transport Corridor (South Road), the property is well positioned on a 1080sqm* corner allotment which provides great access to the 15 onsite carparks plus street carparking on Ackland Avenue. The main building constructed in 1935 relishes in its magnificent english-tudor architecture catching the eyes of 24,500 drivers that pass everyday (DIT, 2021*). There is so much to list- best to make an appointment with Nic for a private walk-through today!

Lease Details:

  • 7 Year Lease to 2031 (with a further option to renew)
  • Long-standing SA iconic tenancy- Bracegirdle’s House of Fine Chocolate
  • Net Rental $98,375.48 p.a. + GST
  • Recoverable Outgoings include Council, ESL, Water, Build Insurance, Property Management & General Maintenance
  • Re-purposed site and building to suit 

Building Description:

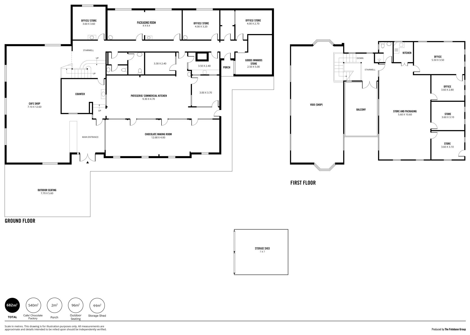
  • 540sqm Main Building Area
  • Large light-filled and rustic open Café area with exposed timber beams and roof lines
  • Enjoy a dessert delight and watch it all being made through the glass backdrop that forms the sealed chocolate making room
  • Central elevated counter with glass display
  • An additional 96sqm of undercover outdoor seating
  • Commercial grade kitchen/ patisserie 
  • Public Female and Male amenities on the ground floor
  • Packaging Rooms and Product Storage on the eastern side of the building
  • Loading with delivery vehicle accessibility at the back
  • Split System Air Conditioning through all the areas for separate cooling and climate control
  • Upstairs Balcony Area, Storage and Office Administration self contained with its own kitchenette and bathroom amenities
  • Storage Shed 44sqm with double roller door access
  • Recently re-painted exterior rendered facade

Land Specs:

  • Corner allotment of 1080sqm*
  • Dual street frontages to Cross Road & Ackland Avenue
  • Zoned as Suburban Neighbourhood
  • Registered Use: Food Manufacturing/ Retail Café/ Storage
  • Onsite and street car parking
  • Fantastic Redevelopment Potential (STCC)
  • No Heritage or Historical Conservation currently listed over the property
15 1,080 m2
Address 289-291 Cross Rd, Clarence Gardens
Price SOLD
Property Type Commercial
Property ID 2461
Category Retail, Offices, Showrooms/Bulky Goods
Land Area 1,080 m2

Agent Details

Nick Mastrangelo photo

Nick Mastrangelo

0401 790 753
View Profile
Pasquale Mastrangelo photo

Pasquale Mastrangelo

0409 465 863
View Profile