Modern Retail/Office/Consulting Space FOR LEASE in Woodville

THREE (3) TENANCIES AVAILABLE

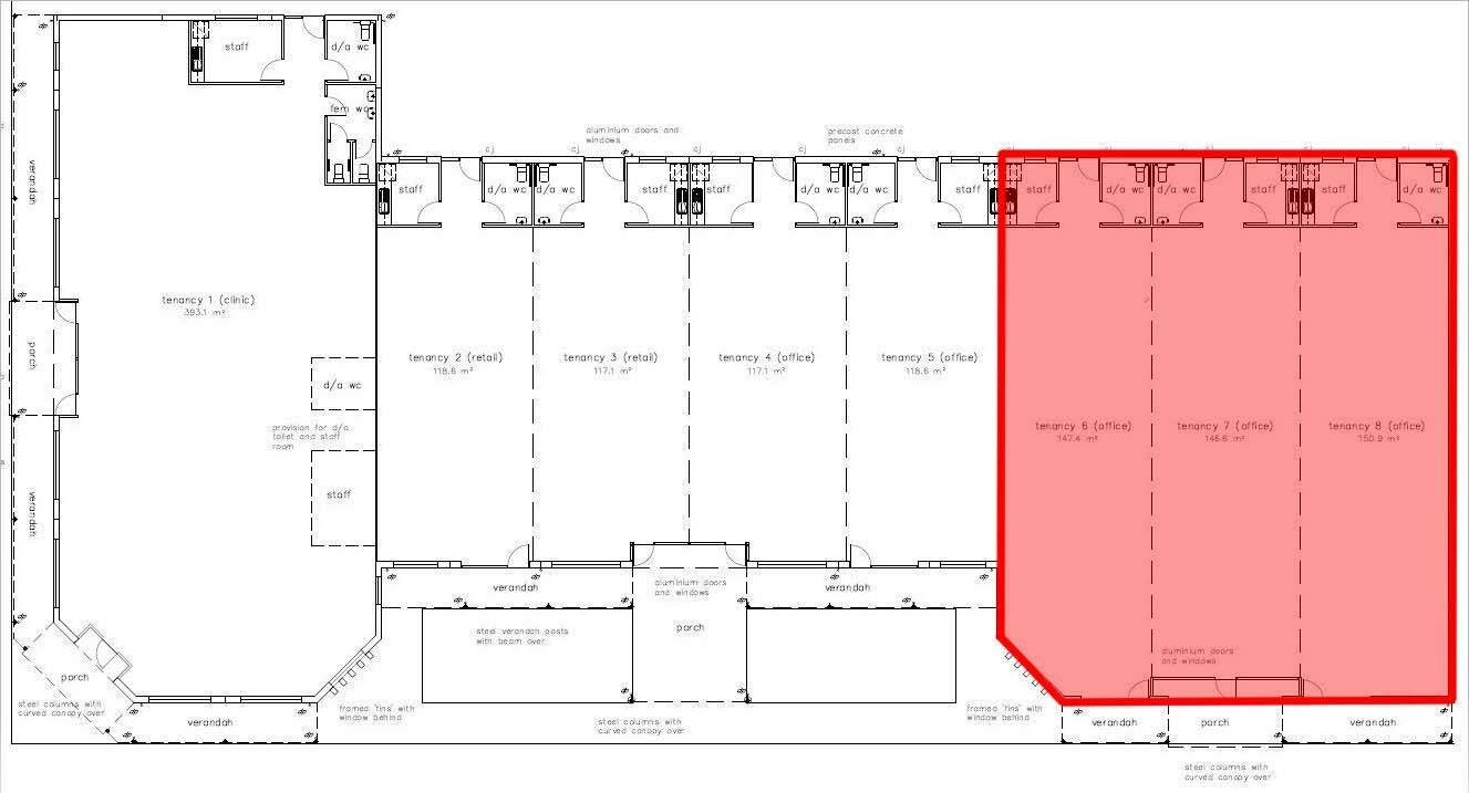
Total Building Area of 445.1 SQM* (Can be leased out together or individually)

Available from January 2025.

TENANCY 6 (SHOP 3)- 809-813 PORT ROAD, WOODVILLE – 147.4 SQM*

Features of the property include:

  • Retail/Office/Consulting Space 
  • Total Lettable Area of 147.4 sqm* (approx.)
  • Toilet Amenities
  • Open Floorplan Tenancy
  • Ample Car Parking
  • Flexible Terms and Conditions

TENANCY 7(SHOP 2) - 809-813 PORT ROAD, WOODVILLE – 146.8 SQM*

Features of the property include:

  • Retail/Office/Consulting Space 
  • Total Lettable Area of 146.8 sqm* (approx.)
  • Toilet Amenities
  • Open Floorplan Tenancy
  • Ample Car Parking
  • Flexible Terms and Conditions

TENANCY 8 (SHOP 1) - 809-813 PORT ROAD, WOODVILLE – 150.9 SQM*

Features of the property include:

  • Retail/Office/Consulting Space 
  • Total Lettable Area of 150.9 sqm* (approx.)
  • Toilet Amenities
  • Open Floorplan Tenancy
  • Ample Car Parking
  • Flexible Terms and Conditions

INSPECTION IS A MUST.

If you would like to inspect the property, please contact Jordan House on 0405 488 052, Pasquale Mastrangelo 0409 465 863 or our Landline on (08) 8212 0140.

 

Address Unit 8, 809-813 Port Rd, Woodville
Price $350 per sqm + Outgoings + GST
Property Type Commercial
Property ID 2508
Commercial Listing Type Lease
Category Retail, Medical/Consulting
Total Area 150m2

Agent Details

Pasquale Mastrangelo photo

Pasquale Mastrangelo

0409 465 863
View Profile
Dion Mastrangelo photo

Dion Mastrangelo

0431 576 848
View Profile
Jordan House photo

Jordan House

0405 488 052
View Profile