LEVEL 1, 194 PROSPECT ROAD, PROSPECT - FOR LEASE

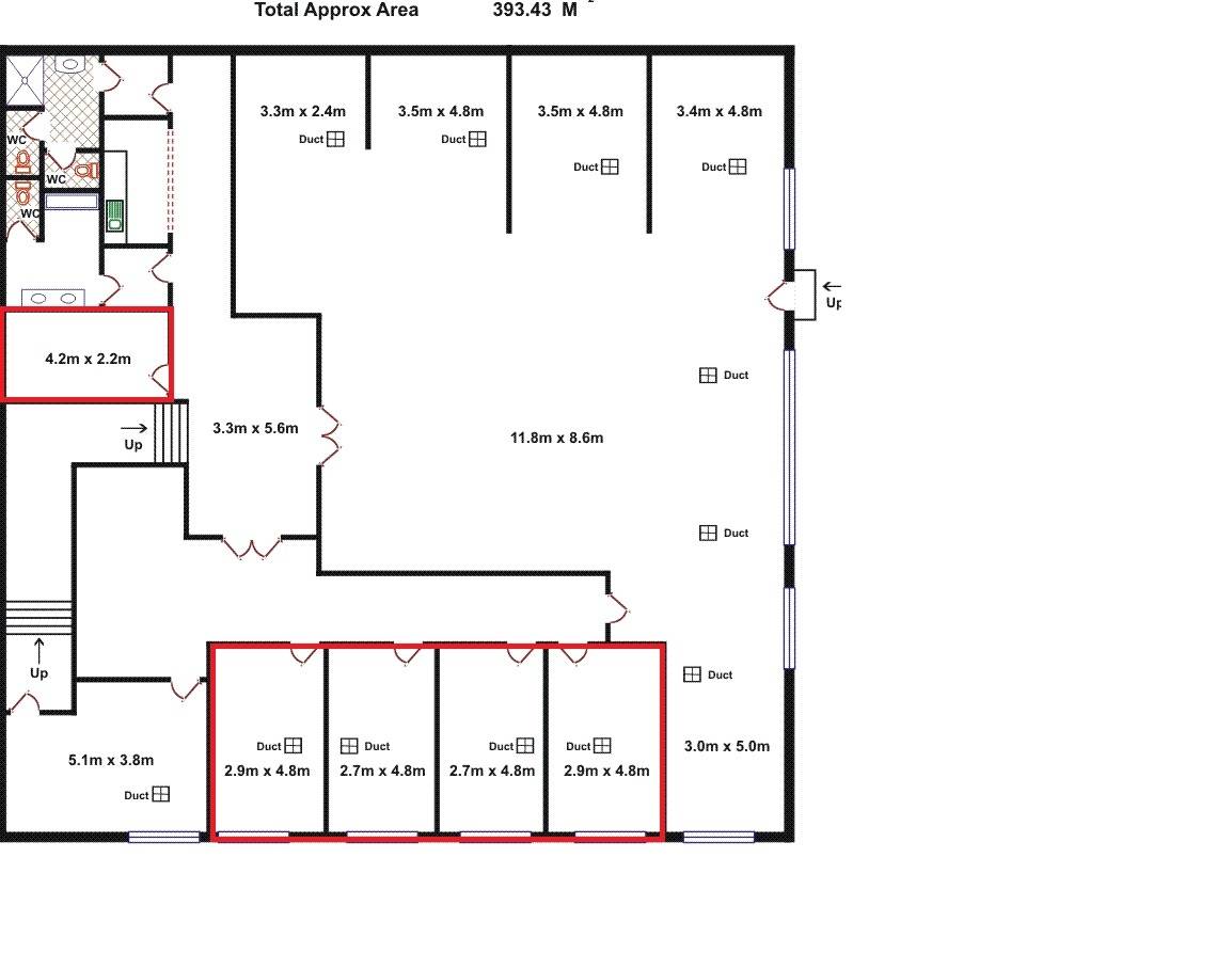
OFFICE / CONSULTING SPACE

50 SQM (APPROX)

4 SMALL OFFICE ROOMS

1 SMALL STORAGE ROOM INCLUDED  

FLEXIBLE LEASE TERMS AND CONDITIONS

If you would like to inspect the property, please contact Jordan House on 0405 488 052 or Mastracorp Landline on (08) 8212 0140.

Address 1/194 Prospect Road, Prospect
Price $14,000 + Outgoings + GST
Property Type Commercial
Property ID 2518
Commercial Listing Type Lease
Category Offices
Office Area 50m2
Total Area 50m2

Agent Details

Jordan House photo

Jordan House

0405 488 052
View Profile