Stunning, Newly Renovated 3-Bedroom Unit in Prime Beverley Location - $610 per week

Stunning, Newly Renovated 3-Bedroom Unit in Prime Beverley Location - $610 per week

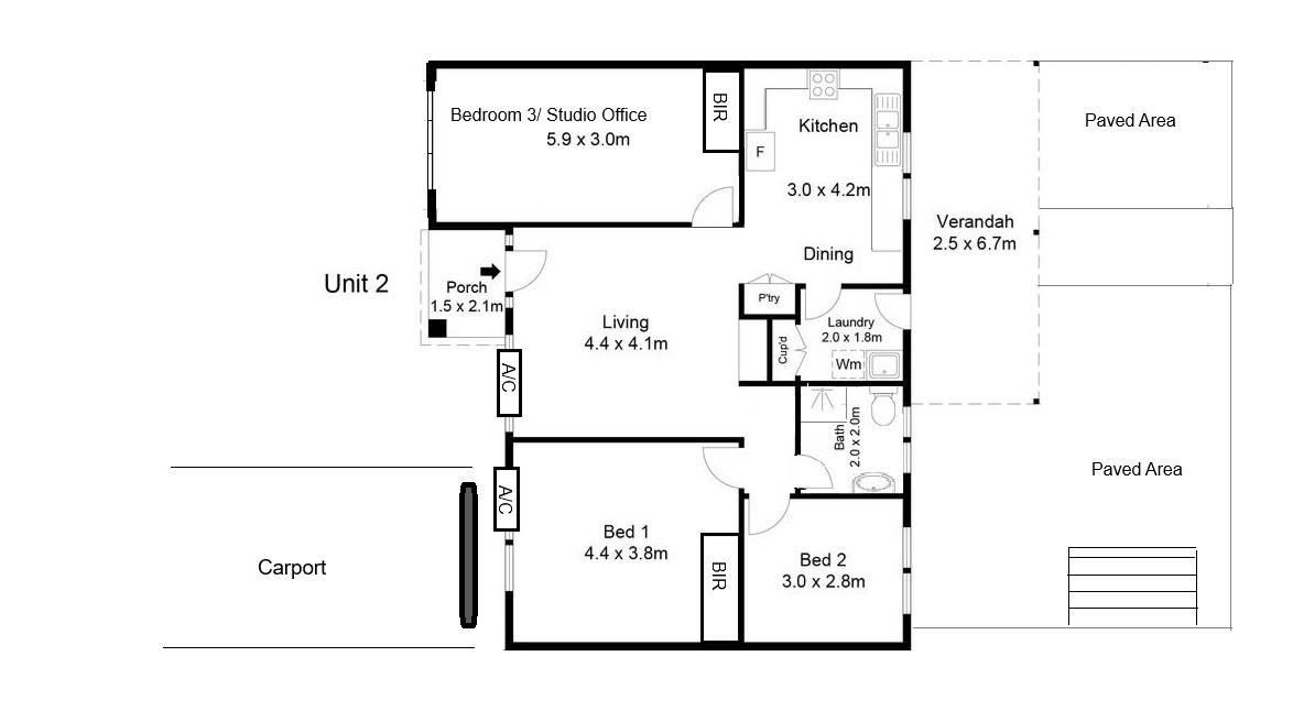
Address: Unit 2/30 East Avenue, Beverley, SA 5009

Discover the perfect blend of modern living and convenience in this beautifully renovated 3-bedroom unit, ideally located in the heart of Beverley. With fresh upgrades to the kitchen, bathroom, and bedrooms, this home is ready to welcome its new tenants.

Property Highlights:

  • 3 Spacious Bedrooms – Ideal for families or professional housemates.
  • Brand New Modern Kitchen – Equipped with high-quality appliances for a stylish and functional cooking space.
  • Newly Renovated Bathroom – Contemporary design with high-end fixtures.
  • Bright Living Area – A spacious, inviting room for relaxation or entertaining.
  • Separate Laundry Area – Adding convenience to everyday living.

Prime Location:

  • Schools: Allenby Gardens Primary School (approx. 850m) and Findon High School (approx. 2.25km) nearby, making this an ideal location for families.
  • Healthcare: Pro Health Care Beverley Medical Centre within close reach for all your medical needs.
  • Shopping: Surrounded by supermarkets and shopping centers to meet your daily shopping requirements.
  • Public Transport: Conveniently located near multiple public transport routes, offering easy access to the city and surrounding areas.

This unit offers a comfortable lifestyle with the added benefit of a great location. Book your inspection today to experience this stunning home firsthand!

 

3 1 1
Available Leased
Address Unit 2, 30 East Ave, Beverley
Price $610 per week
Property Type Rental
Property ID 2535
Category Unit

Agent Details

Mastracorp Rental Team photo

Mastracorp Rental Team

0882120140
View Profile