Enduring Character & Timeless Charm

Between the City and the Sea!

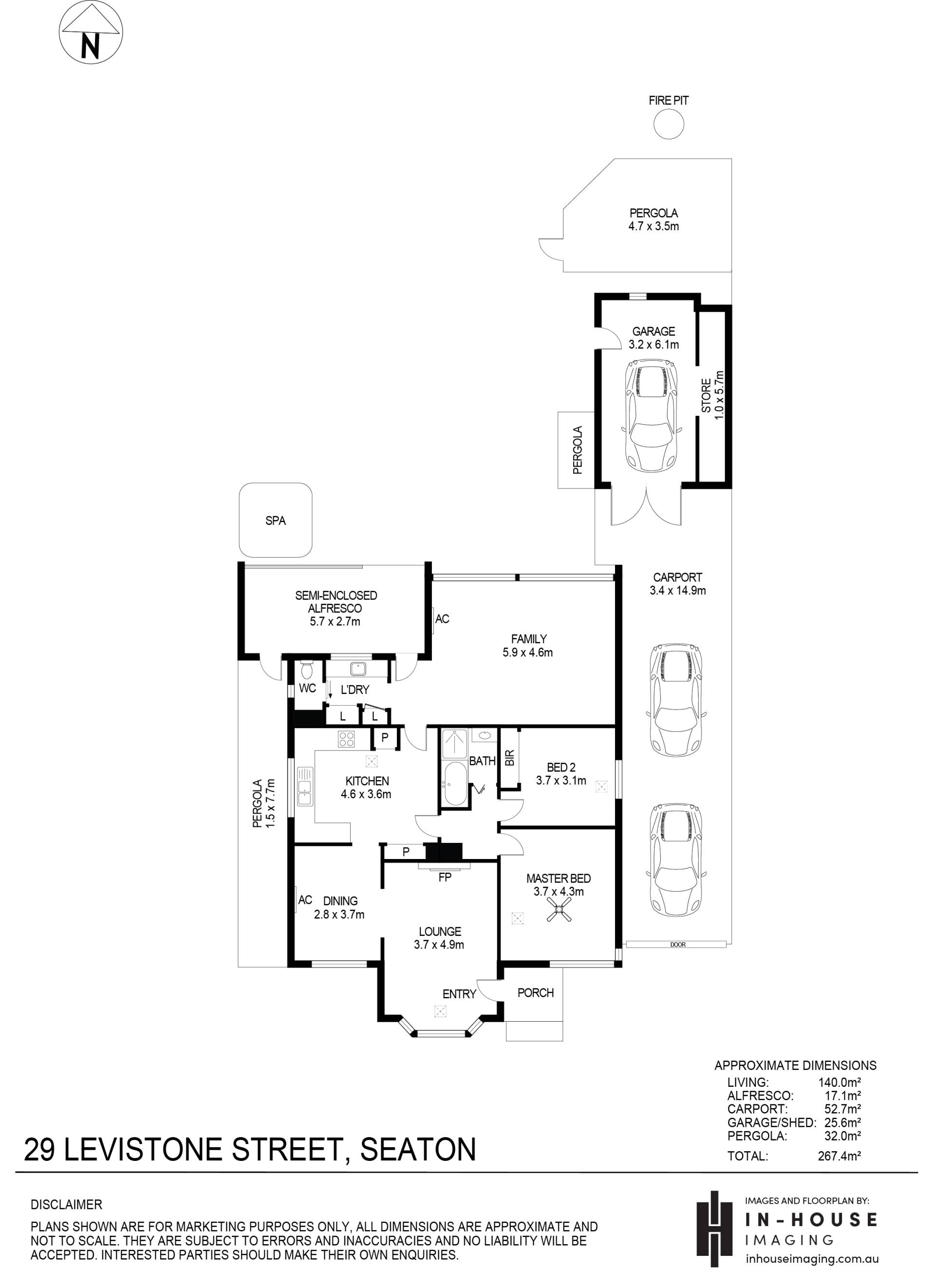
Nestled in the heart of Seaton on a quiet street, this charming 1950s solid brick family home sits on a generous 676sqm allotment. Blending beautifully renovated features with its original character, the property offers endless possibilities for families, renovators, and investors. Ready to move in and enjoy, make further renovations and extend, or explore the lands subdivision potential (STCC).

Ideally located just minutes from stunning beaches, West Lakes Shopping Centre, schools, parks, and public transport, this home combines convenience with lifestyle. With easy access to the city, it’s the perfect choice for those seeking the best of both worlds.

The home showcases thoughtful renovations, including polished pine timber floors, an updated kitchen with neutral tones, and contemporary bathroom and laundry upgrades. At the rear, a spacious open-plan area is bathed in natural light, featuring a stunning glass backdrop overlooking lush tropical greenery. The area is currently used as the main living space, this versatile area can be adapted to suit your needs, such as creating an extra bedroom and office studio.

Key Features:

         Generous 676sqm allotment (approx.)

         Updated kitchen with stylish shaker-style cabinetry and matching marble look bench tops and splash back.  

         Modernized bathroom with shower and bath

         Tiled undercover alfresco area, perfect for year-round entertaining

         Enclosed carport with automatic roller door and drive-through access, accommodating up to 4 vehicles

         Large garage and workshop, ideal for tradies or extra storage

         Split-system air conditioning and ceiling fans for year-round comfort

         Outdoor features including a Jacuzzi spa, shaded greenhouse, fire pit, and seating area

         Gas fireplace and shutters for added comfort and privacy

Just a 5-minute drive to the beach and 15 minutes to the city, it truly delivers the best of both worlds.

For more information or to register your interest, please contact Nic. Private inspections may be available by appointment, subject to vendor availability.



 

3 1 4 676 m2
Address 29 Levistone St, Seaton
Price SOLD
Property Type Residential
Property ID 2547
Category House
Land Area 676 m2
Floor Area 235 m2

Agent Details

Nick Mastrangelo photo

Nick Mastrangelo

0401 790 753
View Profile