SOLD BY NIC MASTRANGELO - MASTRACORP COMMERCIAL

Mastracorp Commercial is proud to present 146-148 Francis Road, Wingfield, a standout property situated in the heart of Wingfield’s thriving industrial precinct. This prominent 7,863sqm* corner allotment boasts significant exposure at the intersection of Francis Road and Davis Street, with unparalleled access to key transport routes, including South Australia’s Northern Connector linking the Northern Expressway, South Road Superway, and Port River Expressway.

This Industrial opportunity comes with exceptional flexibility, appealing to owner-occupiers, investors, developers, or a combination of all three.

Key Features:

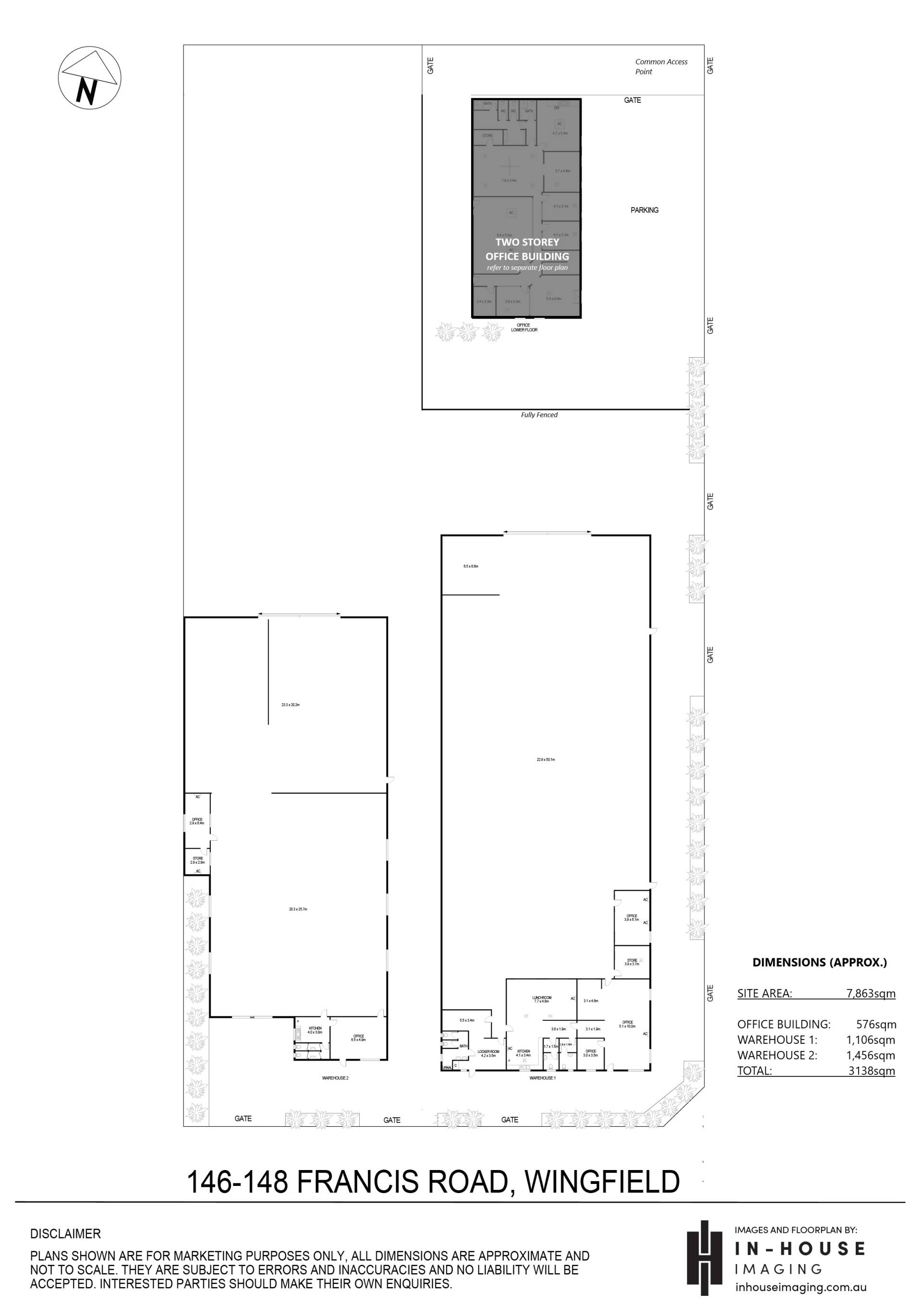
  • Total Site Area: 7,863sqm*
  • Frontage: 62m* to Francis Road, 127m* to Davis Street
  • Gross Lettable Area: 3,138sqm
    • Warehouse 1 (146 Francis Rd): 1,106sqm*
    • Warehouse 2 (148 Francis Rd): 1456sqm*
    • Two-storey office building (39 Davis St): 576sqm*
  • Two self-contained tenancy areas with different Street Addresses
  • Security fenced boundaries
  • Modern tilt-up construction, purpose-built office building
  • 7 gate access points over both street frontages
  • High-clearance warehouses with 3-phase power
  • Zoned Strategic Employment, offering scope for redevelopment (STCC)
  • Buyer with options to negotiate a new long-term lease or vacate at expiry in-order to occupy or repurpose the site.
  • Sold as a Going Concern (GST exemption applies)

A rare opportunity to secure a high-profile industrial property with excellent redevelopment potential in one of South Australia’s most sought-after industrial hubs.

For a virtual tour of the property, click the link proceed through our 360 walk-through and interactive floor plan.

https://vtc.virtualtourscreator.com.au/share/1842b7010aa92928a3ba3e68c281a7d6

Please request a copy of our detailed Information Memorandum for more information.

*Approximate.

STCC: Subject to Council Consent.

 

 

7,863m2
Address 146-148 Francis Rd, Wingfield
Price SOLD for $6,305,000
Property Type Commercial
Property ID 2552
Commercial Listing Type Sale
Category Industrial/Warehouse, Offices, Land/Development
Land Area 7,863m2
Office Area 576m2
Warehouse Area 2,562m2
Total Area 3,138m2

Agent Details

Nick Mastrangelo photo

Nick Mastrangelo

0401 790 753
View Profile