Just Listed

RETAIL SPACE – IDEAL FOR A ‘CAFÉ / BAKERY’

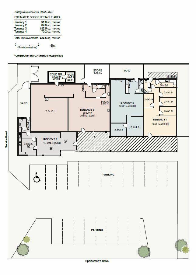
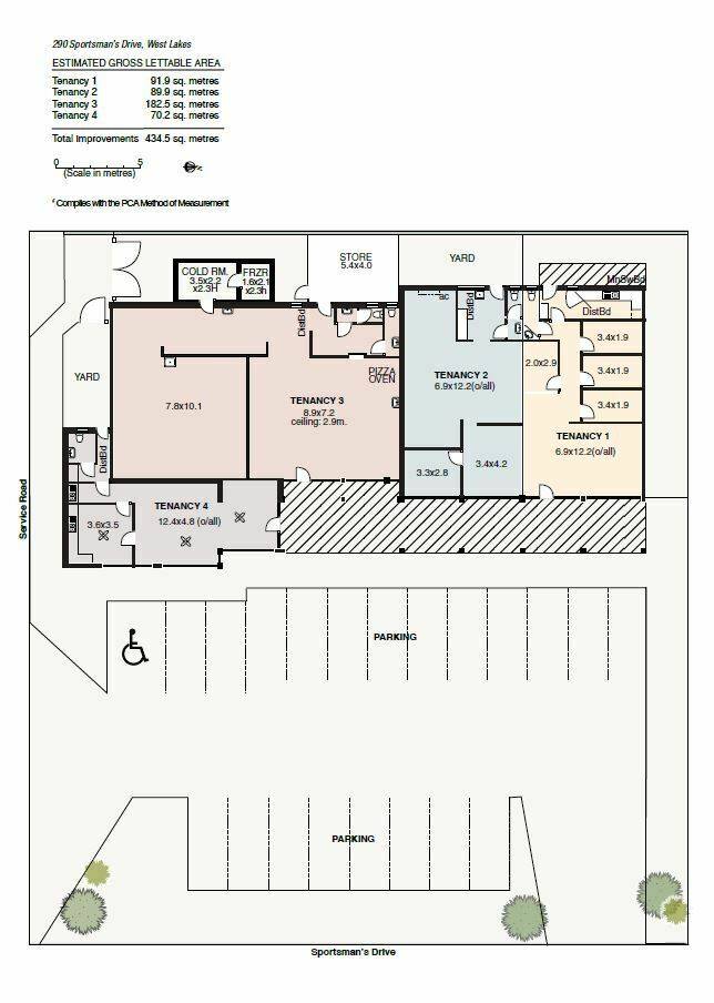
182.5 SQM (APPROX) 

BRICK WOODOVEN INCLUDED

FLEXIBLE LEASE TERMS AND CONDITIONS

INSPECTION A MUST!

If you would like to inspect the property, please contact Dion Mastrangelo on 0431 576 848 or Jordan House on 0405 488 052 or Mastracorp Landline (08) 8212 0140. 

Address Unit 3, 290 Sportsmans Dr, West Lakes
Price CONTACT AGENT
Property Type Commercial
Property ID 2613
Category Retail

Agent Details

Dion Mastrangelo photo

Dion Mastrangelo

0431 576 848
View Profile
Jordan House photo

Jordan House

0405 488 052
View Profile
Pasquale Mastrangelo photo

Pasquale Mastrangelo

0409 465 863
View Profile