Sold

Corner Landmark Location - OWNER SAYS SELL!

Price reduced to $850,000- fantastic buying !

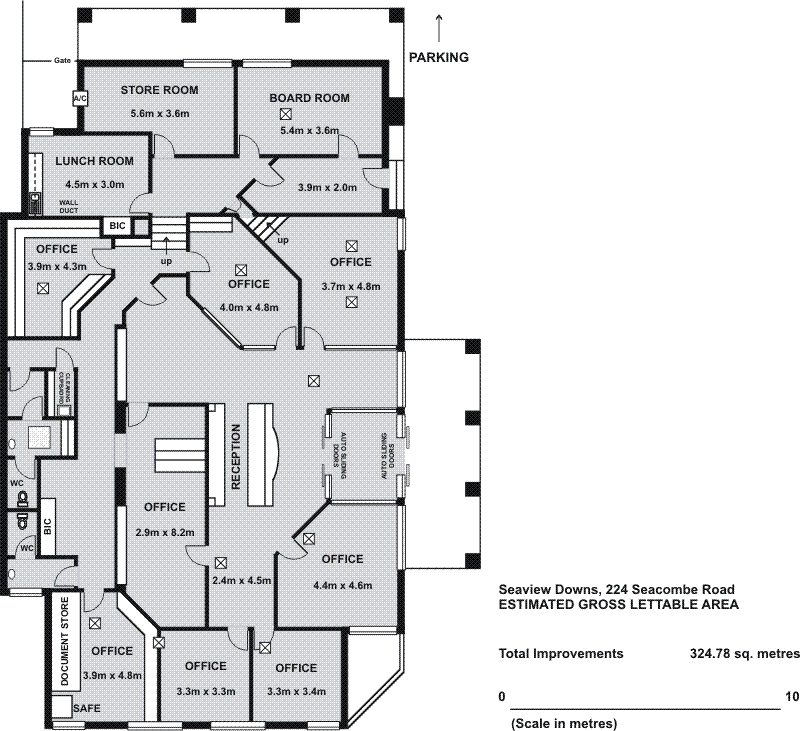
Located on a highly exposed corner landmark site with dual frontage to Seacombe Road and Davenport Terrace lies this attractive building which has been updated and maintained to the highest standard.

It provides a prominent and valuable corporate image without compromise to be easily transformed to an open plan layout or reconfigured to suit whatever requirements your business needs (see below zoning extract for permissible uses of this flexible zoning).

Features to the existing layout and improvements include:

- Large front reception with waiting area
- Multiple segregated offices plus an open office area tucked away behind the reception desk
- 12 onsite car parks (located at the rear) with ample street car parks
- Practically located boardroom, lunchroom and storage facilities

Information to note:

Site Area: 692 sqm (approx)
Building Area: 320 sqm (approx)
Zoning: NCE (Neighborhood Center Zone)
(See zoning extract)
Tenure: Sold as vacant possession

Inspection is a must !
27 692 m2
Address 224 Seacombe Road, Seaview Downs
Price SOLD
Property Type Commercial
Property ID 1243
Category Offices, Medical/Consulting, Showrooms/Bulky Goods
Land Area 692 m2
Floor Area 325 m2

Agent Details

Nick Mastrangelo photo

Nick Mastrangelo

0401 790 753
View Profile
Pasquale Mastrangelo photo

Pasquale Mastrangelo

0409 465 863
View Profile