Sold

Circa 1910 Sandstone Villa plus Self-contained...

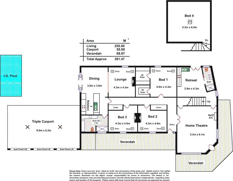
This solid brick home is the perfect balance of old and new - a 1910 Sandstone Villa with its grandeur proportions and ornate features offers elegant character without compromise to modern day living with an updated kitchen, bathroom, living areas and outdoor entertaining area with sparkling pool. If this isn’t enough, the property boasts a completely self-contained 1 bedroom retreat, which opens up numerous possibilities including creating an additional rental income stream, owner-occupy for a home business, or simply enjoying the extra living space – It is perfectly positioned and easily separated from the main house to provide a separate living area for teenager, parent or business.

Features of the main house include:
- Original polished timber floor boards and 4 metre high decorative ceilings throughout main living areas including the bedrooms, family room and hall way.
- Main kitchen with white timber ‘soft close’ cupboards, laminate bench tops and quality stainless steel appliances.
- Open family and dining area with glass patio doors leading to an outdoor entertaining area and fully fenced sparkling pool
- Master bedroom with his and hers walk in robes, with scope to convert one into ensuite if you wish.
- Spacious 2nd & 3rd Bedroom with ornate fireplaces, timber mantles & large built-in robes.
- Triple garage with roller doors that doubles up as “all-year-round” undercover entertaining area
- Fully renovated and retiled main bathroom & laundry with large shower head, laminate bench, top vanity and ample cupboard/ linen space.
- Recently installed top end Solax 19 Panel Solar System with Heavy Duty LG Chem Battery Storage
- Reverse Cycle heating and cooling throughout

Features of the 1 bedroom retreat/ second living area/ commercial-use area include:
- Large light-filled living room freshly carpeted with split a/c for isolated year-round comfort
- Freshly installed kitchen, laminate cupboard and bench tops + dining area
- Bathroom with top to bottom rose-wine ceramic tiles and updated vanity
- Spacious bedroom located on the 2nd level with a/c completing the self-contained living space.

Located just 10 minutes’ walk to Semaphore’s Beaches and Retail/ Café precinct. Fantastic public transport options and within proximity to quality primary and secondary schools.
4 2 3
Address 26 Carlisle Street, Ethelton
Price SOLD
Property Type Residential
Property ID 1376
Category House
Floor Area 256 m2

Agent Details

Nick Mastrangelo photo

Nick Mastrangelo

0401 790 753
View Profile
Dion Mastrangelo photo

Dion Mastrangelo

0431 576 848
View Profile
Pasquale Mastrangelo photo

Pasquale Mastrangelo

0409 465 863
View Profile