Sold

Warehouse/ Showroom/ Office

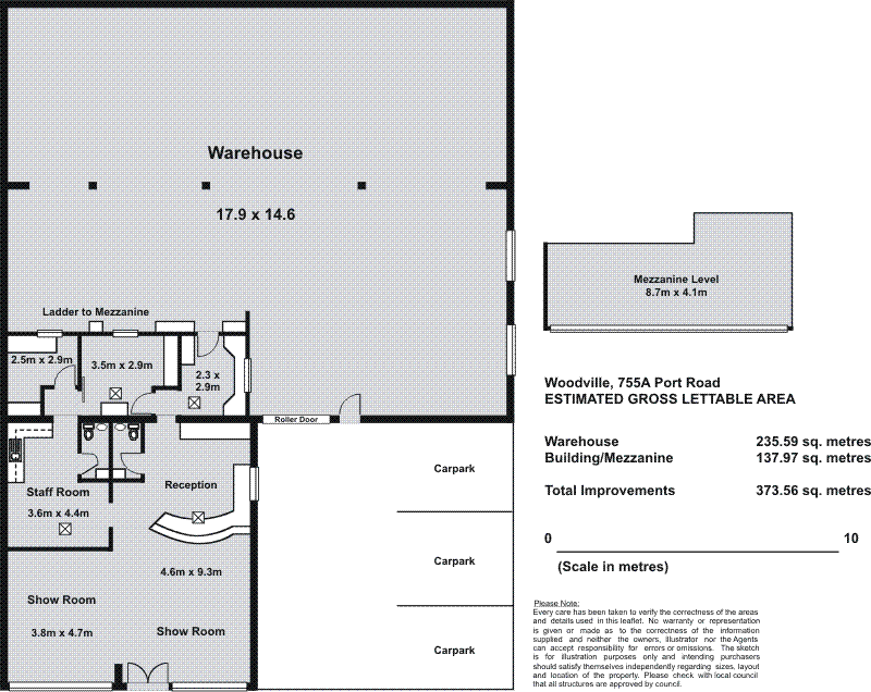
Located on the northern side of Port Rd with fantastic exposure to the traffic heading into the city, lies this fantastic warehouse/ workshop and showroom/ office commercial opportunity. Owner occupied by Designer Surfaces, the property is on offer with the flexibility of vacant possession or short-term leaseback.

Features to the property include:
- Warehouse + Mezzanine: 270sqm
- Showroom/ Office: 103sqm
- Land: 456sqm
- 5 onsite car parks with an abundance of Port Rd mid-lane public parking available
- Zone: Mixed Use PA 47
- Inspection a Must – For sale by private treaty (neg)

Call Nicolas 0401 790 753 or email nick@mastracorp.com.au for more details.
Address 755A Port Road, Woodville
Price SOLD
Property Type Commercial
Property ID 1402
Category Retail, Industrial/Warehouse, Showrooms/Bulky Goods
Floor Area 465 m2

Agent Details

Nick Mastrangelo photo

Nick Mastrangelo

0401 790 753
View Profile
Pasquale Mastrangelo photo

Pasquale Mastrangelo

0409 465 863
View Profile