Fantastic Potential - 3 Bedroom Home on Corner Allotment

Well positioned with a "nature strip" grass road verge between the large 753 sqm (approx.) corner allotment and Martins Road, the property enjoys a quiet and peaceful location without compromise to convenience. Only a short walk away from Hollywood Plaza Shopping Centre and also close to Aldi Supermarket, the famous Slug 'N' Lettuce Hotel, quality schools, parks and access to many public transport options.

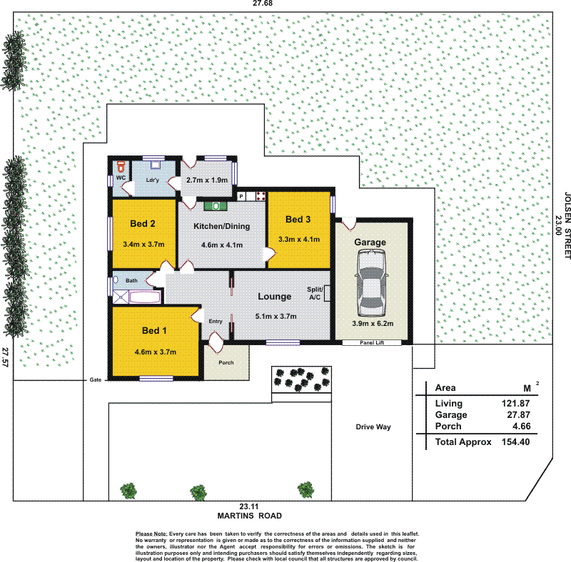
This solid brick 3 bedroom home, originally presented offers an astute investor/developer outstanding potential to add value to their property portfolio. Features of the property are:

- Land size of 753 sqm (approx.)

- Fantastic re-development potential taking advantage of an almost perfectly square allotment with dual frontage; approximately 26m to both Martins Road and Jolsen Street (subject to council consent)

- Large master bedroom

- Good sized bedrooms 2 and 3

- Large, light filled lounge with split R/C air conditioner

- Original kitchen with ample cupboard space, gas cooktop and dining area

- Bathroom with separate bath and shower

- Separate laundry and toilet

- Single carport and side access via Jolsen Street

- Currently rented @ $265 pw (expiry 21/03/19)

If you would like further information or to inspect the property please contact Nick Mastrangelo 0401 790 753 or Mastracorp Land line 08 8212 0140

3 1 1 753 m2
Suburb Salisbury Downs
Price SOLD
Property Type Residential
Property ID 1676
Category House
Land Area 753 m2
Floor Area 150 m2

Agent Details

Nick Mastrangelo photo

Nick Mastrangelo

0401 790 753
View Profile