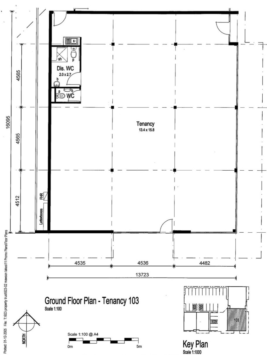
OFFICE / CONSULTING SPACE - 212 SQM (APPROX.)

Mastracorp is proud to present this fantastic office / consulting opportunity in Mawson Lakes

Features of the property include:

- Perfect office / consulting space

- Great location and exposure on corner of Hurtle Parade and Main Street

- 212 sqm (approx.) including kitchen, 2 bathrooms and a shower

- 1 carpark included

- Freshly painted

- Previous tenant occupied since July 2007

Inspection a must!

If you would like to inspect the property please contact Pasquale Mastrangelo on 0409 465 863 or Dion Mastrangelo on 0431 576 848 or Mastracorp office Land line 08 8212 0140

Address SHOP 3, 18-22 Hurtle Pde, Mawson Lakes
Price $65,000 p.a. + GST (Negotiable)
Property Type Commercial
Property ID 1752
Commercial Listing Type Lease
Category Retail
Total Area 212m2

Agent Details

Pasquale Mastrangelo photo

Pasquale Mastrangelo

0409 465 863
View Profile
Dion Mastrangelo photo

Dion Mastrangelo

0431 576 848
View Profile