Leased

AVAILABLE DECEMBER 2019

This tenancy offers excellent facilities throughout with ample car parking, front reception entry with three private offices, lunchroom, toilet and shower.


Features of the property to mention:

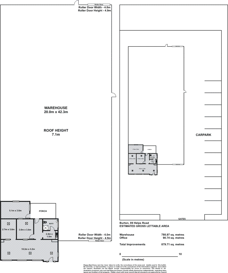
* Total Building Area- 879.71 sqm (approx.)

(Office Area- 90.74 sqm (approx.), Warehouse Area- 788.97 sqm (approx.))

*Site Area - 2,616 sqm (approx.)

* Three private offices

* Ducted A/C

* 4.9 m High clearance entry

* Excellent toilet/staff amenities

* 3 phase power

INSPECTION A MUST!

If you would to inspect the property please do not hesitate to contact Dion Mastrangelo on 0431 576 848, Pasquale Mastrangelo on 0409 465 863 or Mastracorp Landline on (08) 8212 0140

2,616 m2
Address 89-91 Helps Rd, Burton
Price $60,000 p.a + Outgoings + GST
Property Type Commercial
Property ID 1804
Category Industrial/Warehouse, Offices
Land Area 2,616 m2
Office Area 90m2
Warehouse Area 788m2
Floor Area 880 m2

Agent Details

Dion Mastrangelo photo

Dion Mastrangelo

0431 576 848
View Profile
Pasquale Mastrangelo photo

Pasquale Mastrangelo

0409 465 863
View Profile