IMAGINATION CREATES REALITY

Situated on a generous 710sqm corner allotment boasting dual driveway street access and within the flexible Local Centre Zone giving scope to a vast array of applicable uses and re-development options (stcc). Let your imagination manifest into a reality using this unique property offering.

Features include:

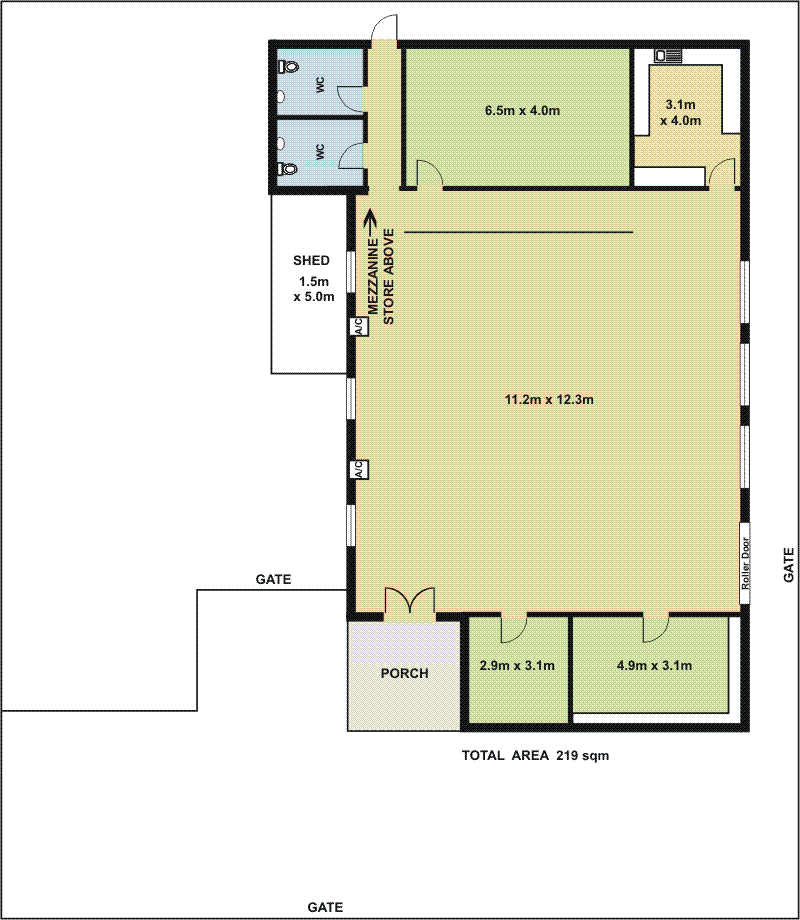
-          Total Building Area: 219sqm*

-          Corner Allotment with dual street frontage and access

-          Current Use: Yoga Studio + Residential Loft

-          Besser Block circa 1963 solid construction

-          Zone: Local Centre Zone

-          Sold as Vacant Possession

 

Refer to Development Plan City of Onkaparinga – Local Centre Zone Extract located in the Information Memorandum for this Sale Listing.

710m2
Address 29 Shepherd Road, Christies Beach
Price SOLD
Property Type Commercial
Property ID 1823
Commercial Listing Type Sale
Category Industrial/Warehouse, Offices, Showrooms/Bulky Goods
Land Area 710m2
Total Area 219m2

Agent Details

Nick Mastrangelo photo

Nick Mastrangelo

0401 790 753
View Profile
Pasquale Mastrangelo photo

Pasquale Mastrangelo

0409 465 863
View Profile