OFFICE/ WAREHOUSE

- GREAT CORNER LOCATION! 

- QUALITY BUILT TILT-UP CONSTRUCTION WAREHOUSE/OFFICE/ SHOWROOM 

- HIGH CLEARANCE ROLLER DOOR ACCESS

- 3 PHASE POWER (Multiple outlet points along all walls of the warehouse) 

- ZONED: LIGHT INDUSTRY

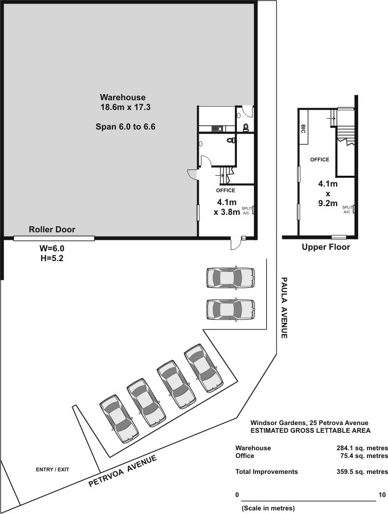
- TOTAL AREA: 359 SQM

- HIGH SECURITY FENCE 

-AMPLE OUTSIDE CAR PARKING 

- AVAILABLE FEBURARY 2020 (Inspection by appointment only) 

INSPECTION A MUST!

For further information or to inspect please contact Nic Mastrangelo on 0401 790 753 or Mastracorp Landline on 08 8212 0140.

Address 25 Petrova Ave, Windsor Gardens
Price $36,000 p.a + Outgoings + GST
Property Type Commercial
Property ID 1858
Category Industrial/Warehouse, Offices, Showrooms/Bulky Goods
Office Area 75m2
Warehouse Area 284m2

Agent Details

Nick Mastrangelo photo

Nick Mastrangelo

0401 790 753
View Profile
Pasquale Mastrangelo photo

Pasquale Mastrangelo

0409 465 863
View Profile