FOR LEASE

TENANCY AVAILABLE  ON THE  30/06/2022

OFFICE SPACE WITH AMPLE CAR PARKING

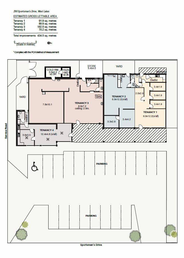
89.9  SQM (APPROX)

VERY NEAT AND TIDY TENANCY

FLEXIBLE LEASE TERMS AND CONDITIONS

INSPECTION A MUST!

If you would like to inspect the property please do not hesitate to contact Dion Mastrangelo 0431 576 848 or Hanin 0406 205 404 or Mastracorp Landline on (08) 8212 0140

Address Unit 2, 290 Sportsmans Dr, West Lakes
Price $23,000 - $25,000 + Outgoings + GST per annum
Property Type Commercial
Property ID 2199
Commercial Listing Type Lease
Category Retail, Offices
Office Area 89m2
Total Area 89m2

Agent Details

Jordan House photo

Jordan House

0405 488 052
View Profile
Dion Mastrangelo photo

Dion Mastrangelo

0431 576 848
View Profile