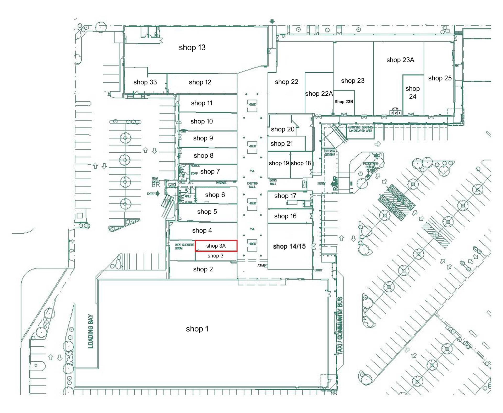
SHOP FOR LEASE SITUATED NEXT TO COLES SUPERMARKET - 50 SQM approx

Here is a Genuine Opportunity to move your business into a busy prominent Shopping Centre with neighbours like Coles, The Cheesecake Shop, Bakers Delight, KFC, Star Chemist, Dan Murphy's and more.

Located in a high traffic suburban area, sure to attract a high volume of customers.

Tenancy Features:
- Area = 50 sqm approx. 
- Suitable for many uses - Internal mall tenancy 
- Located next to Coles 
- Ample customer and staff  car parking 
- Onsite bathroom facilities available 
- Negotiable terms and conditions 

Inspection is a Must!

Don't miss out on the opportunity to secure this Space!

 

Please contact Pasquale Mastrangelo on 0409 465 853 or Mastracorp Office on 08 8212 0140 for more information. 

Address 3a, 522 Port Road, Welland
Price $20,000 PA + Outgoings + GST
Property Type Commercial
Property ID 2422
Commercial Listing Type Lease
Category Retail, Offices
Total Area 50m2

Agent Details

Pasquale Mastrangelo photo

Pasquale Mastrangelo

0409 465 863
View Profile
Dion Mastrangelo photo

Dion Mastrangelo

0431 576 848
View Profile