MODERN WAREHOUSE/ SHOWROOM OPPORTUNITY

Perfectly located between the City and Sea on A7 Port Road, lies this fantastic warehouse opportunity. Mastracorp Real Estate are proud to offer, 740 Port Road, Beverley to the market for sale. A modern warehouse facility of pre-cast construction boasting a 6 metre internal height and 5.14 metre high clearance roller door access.

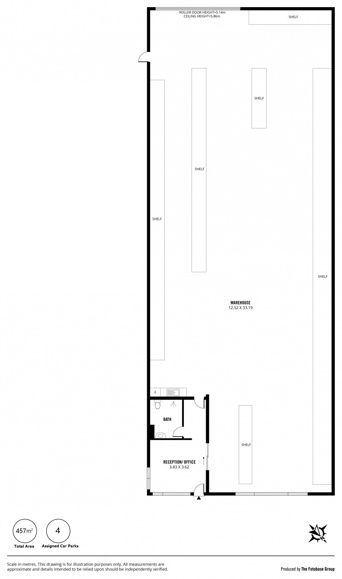
Main Features of the property include:

- Total Area of 457sqm

- Front Office/ Reception area with customer entrance door to Port Road frontage

- Unisex/ disabled bathroom and kitchenette

- 5.14m roller door access from the back carpark via Howards Street entrance

- 5.86m internal height and an impressive 2,595 cubic metres of internal space to better utilize for storage, mezzanine or more office space over two levels (stcc)

- 4 allocated car parks (labelled)

- Great Port Road Exposure with 42,500 Vehicles Passing the site every day (DPTI, 2020)

- Quick access to Adelaide’s main corridor and transport routes including the Port River Expressway and South Road Superway

- Sold as Vacant Possession, GST Applicable

 

4 457 m2
Address 740 Port Rd, Beverley
Price SOLD
Property Type Commercial
Property ID 2436
Category Industrial/Warehouse, Offices
Land Area 457 m2
Warehouse Area 457m2

Agent Details

Nick Mastrangelo photo

Nick Mastrangelo

0401 790 753
View Profile
Pasquale Mastrangelo photo

Pasquale Mastrangelo

08 8212 0140
View Profile