CONTACT AGENT

Mastracorp Real Estate is pleased to present to the market 298 Hindley Street, Adelaide, a fantastic leasing opportunity in a growing CBD precinct.

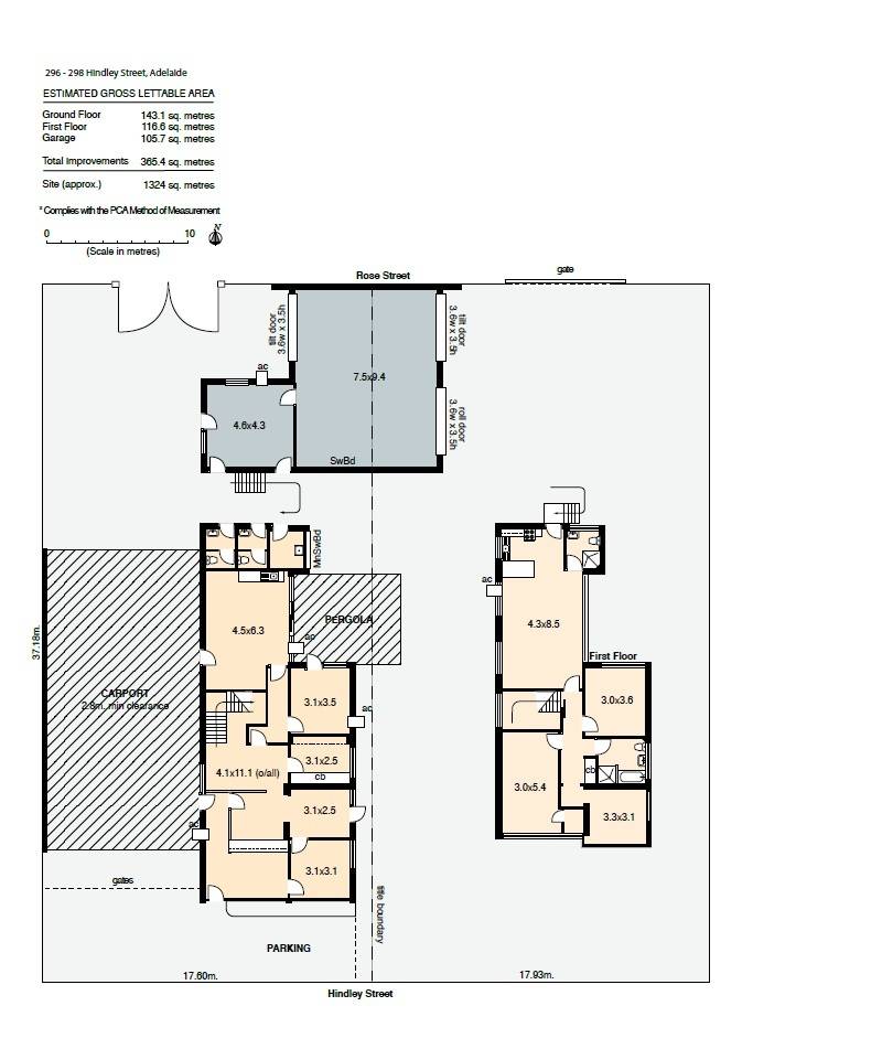
- Site area of 1324 square meters* with right of way.
- Approximately 365.40 square meters* of lettable area. 
- Perfect for consulting rooms, offices or medical. 

Nearby locations include:
- Royal Adelaide Hospital
- UniSA City West Campus
- Adelaide University Medical School
- SAHMRI
- Bragg Centre (SAHMRI 2)
- Adelaide Day Surgery
- SMAX Clinical Research

The location is well catered for by public transport including:
- Tram Stop Royal Adelaide Hospital
- Tramp Stop City West
- Bus Stops B2, Y2 North Terrace
- Bus Stops B1, Y2 Currie Street

For further information please contact Mastracorp’s Leasing Team on 0405 488 052 or the MRE Office on 08 8212 0140.

Address 298a Hindley St, Adelaide
Price Contact Agent
Property Type Commercial
Property ID 2468
Category Medical/Consulting, Offices
Office Area 365m2

Agent Details

Dion Mastrangelo photo

Dion Mastrangelo

0431 576 848
View Profile
Jordan House photo

Jordan House

0405 488 052
View Profile