Under Contract

Port Adelaide Investment Opportunity

Superbly positioned and nestled within Port Adelaide’s Heritage Precinct on Devitt Street lies this fantastic commercial opportunity providing flexible use options and valuable amenities. Currently tenanted as a licensed wine bar, the property is a popular boutique destination where patrons experience quality live music and top-shelf liquor service surrounded by plaster-exposed brick walls of the 19th century and dimmed, atmospheric lighting.

Advantageous features are in abundance and listed as follows:

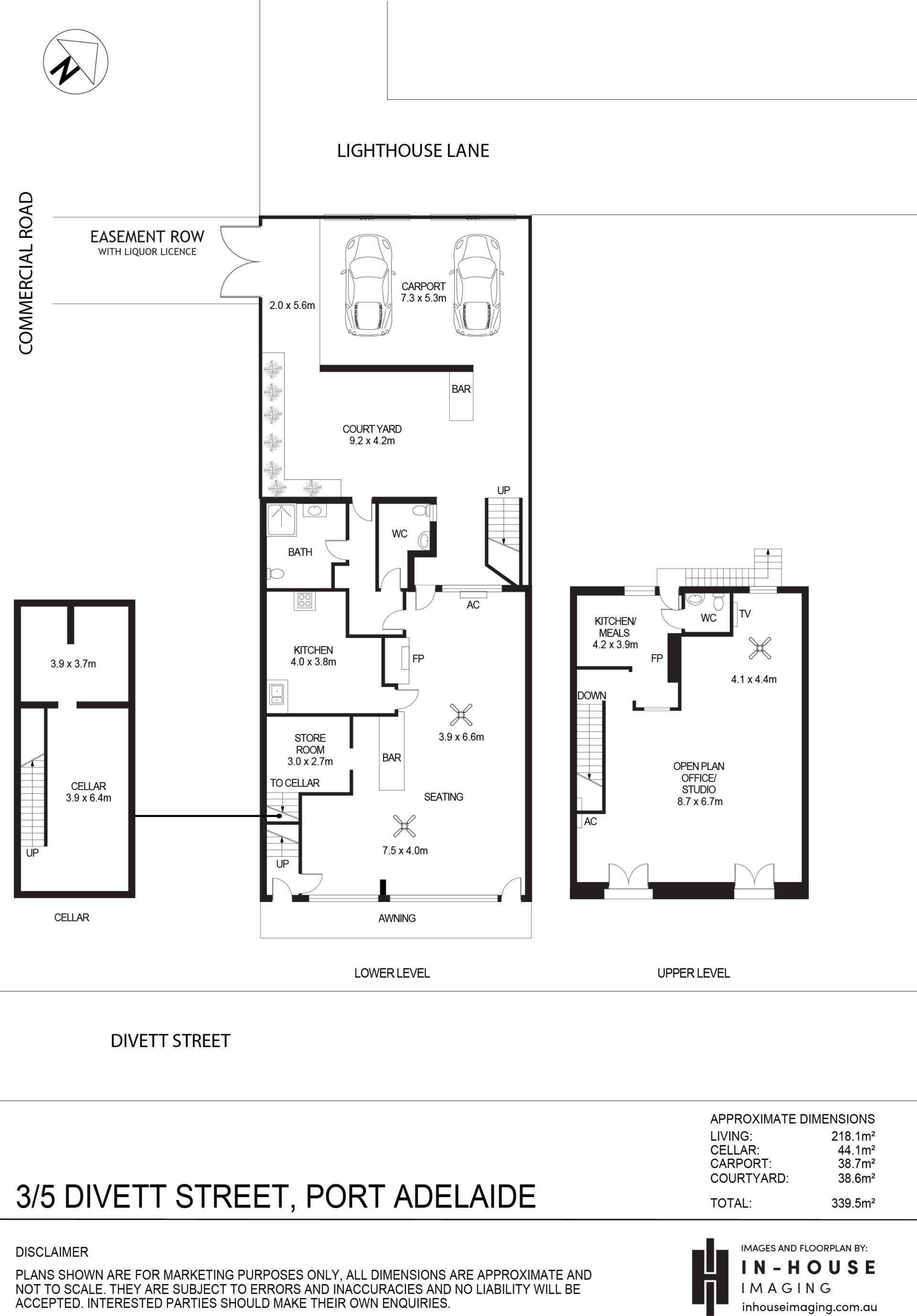
-        One Torrens Title, distributed over Two Levels, each with its own front access point and appointed street address (3 & 5 Divett St)

-        3 Street Access Points- Divett Street (Front), Lighthouse Lane (Rear) and Commercial Road (via side Easement).

-        Total Lettable Area of approximately 340sqm made up of the main front bar/ seating area, commercial-grade kitchen, courtyard beer garden, large cellar and upstairs open plan studio.

-        Sold with an Easement (Right of Way) which provides access from Commercial Road. With 3-5 Divett St favourably positioned at the end of the Easement, the tenancy enjoys an additional licensed sitting area.

-        Rear access from lane way to double lock up garaging

-        Increase and diversify the rental income stream by creating two self-contained tenancy areas and using both front door access points.

-        Fantastic street parking availability (2hrs free 8-6pm)

-        Site Area: 224.6sqm

-        Zoned as Urban Activity Area (Heritage Precinct) – not Heritage Listed

-        Currently tenanted to Fossils Wine Bar at $70,304.00 p.a. + GST (net)

-        Outgoings: Recovered from Tenant

-        Fixed Annual Reviews of 4% increase

-        Lease Term 5 years (expiry 13/11/26) with a further option of 5 years

Please contact Nic for more information and to organise a private viewing.

2 224m2
Address 3-5 Divett Street, Port Adelaide
Price In the vicinity of $1.25M
Property Type Commercial
Property ID 2487
Commercial Listing Type Sale
Category Retail, Offices, Other
Land Area 224m2
Total Area 340m2

Agent Details

Nick Mastrangelo photo

Nick Mastrangelo

0401 790 753
View Profile
Pasquale Mastrangelo photo

Pasquale Mastrangelo

0409 465 863
View Profile