Shop 6, 56 Beach Road, Christies Beach – FOR LEASE

Features of the tenancy include:

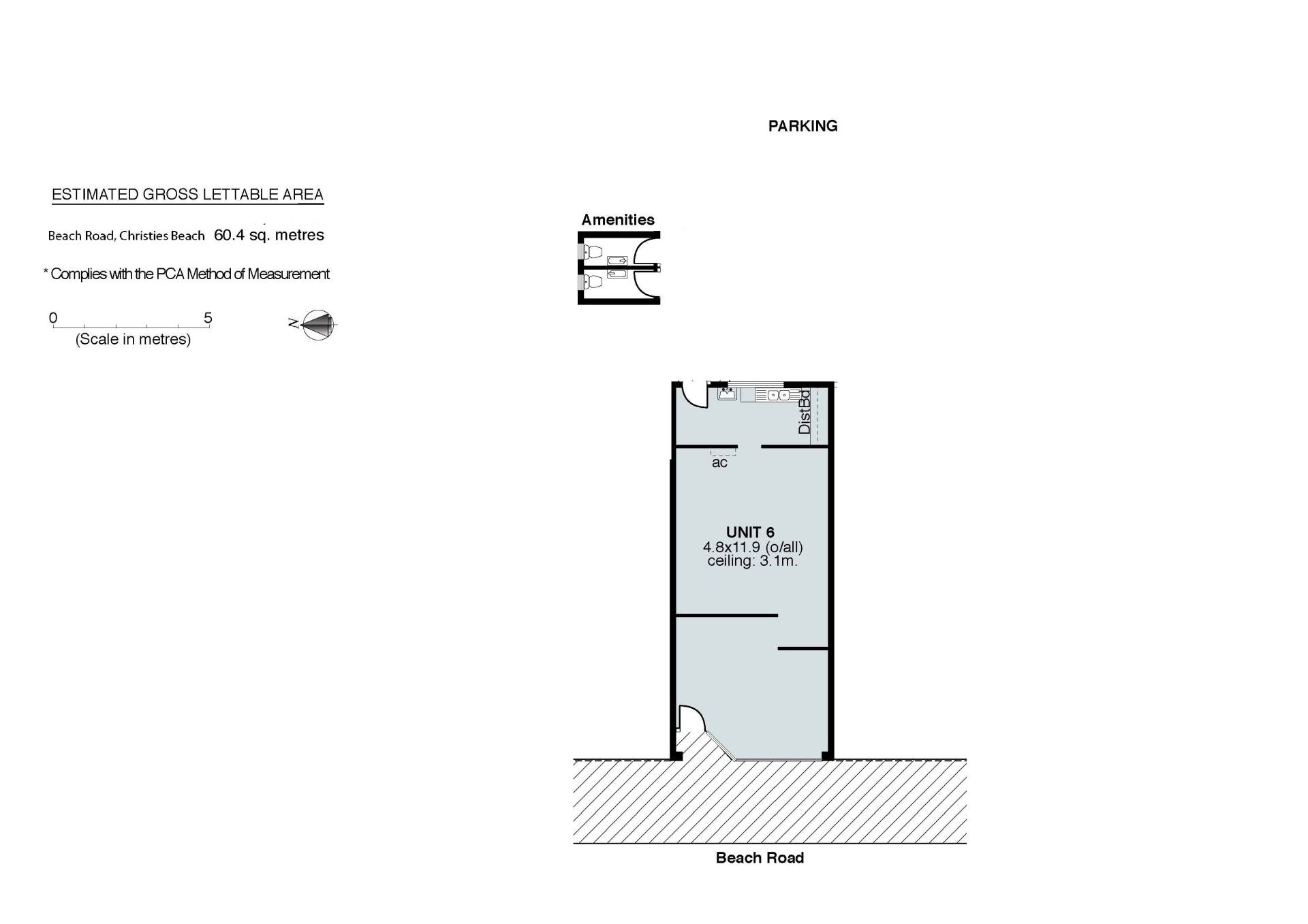
·         Total Building Area of 60.4 sqm* (approx.)

·         Frontage of 22.86m* (approx.)

·         Suitable for Retail / Office / Consulting & Showroom

·         Air-conditioning 

·         Ample Car Parking

·         Flexible Terms and Conditions

Inspection is a must

If you would like to organise an inspection or would like further information, please contact Elio Mastrangelo on 0424 126 498, or our Commercial Leasing Team on 0405 488 052.

Address Shop 6, 56 Beach Road, Christies Beach
Price $15,250 + GST + Outgoings + GST per annum
Property Type Commercial
Property ID 2494
Category Retail, Offices

Agent Details

Elio Mastrangelo photo

Elio Mastrangelo

08 8212 0140
View Profile
Jordan House photo

Jordan House

0405 488 052
View Profile