Leased

FOR LEASE

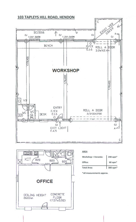
WAREHOUSE/ WORKSHOP/ SHOWROOM/ STORAGE + OFFICE - 300 sqm* (L)

BUILDING AREA: 300 sqm* - consisting of Workshop/ Veranda (240 sqm*) & Stand alone Office Space (60 sqm*)MAIN ROAD EXPOSUREKITCHEN FACILITIESMALE & FEMALE AMENITIESAMPLE CAR PARKINGFLEXIBLE LEASE TERMS & CONDITIONSINSPECTION A MUST!If you have any questions or would like to inspect, please do not hesitate to contact Pasquale Mastrangelo on 0409 465 863 or Dion Mastrangelo on 0431 576 848 or the Mastracorp Landline on 08 8212 0140.

Address 103 Tapleys Hill Road, Hendon
Price CONTACT AGENT
Property Type Commercial
Property ID 2567
Category Industrial/Warehouse
Office Area 60m2
Warehouse Area 240m2

Agent Details

Pasquale Mastrangelo photo

Pasquale Mastrangelo

08 8212 0140
View Profile
Jordan House photo

Jordan House

0405 488 052
View Profile