SOLD City-Fringe Warehouse SOLD

Mastracorp Commercial is pleased to present this fantastic warehouse opportunity SOLD at Auction on Friday the 6th June 2025.

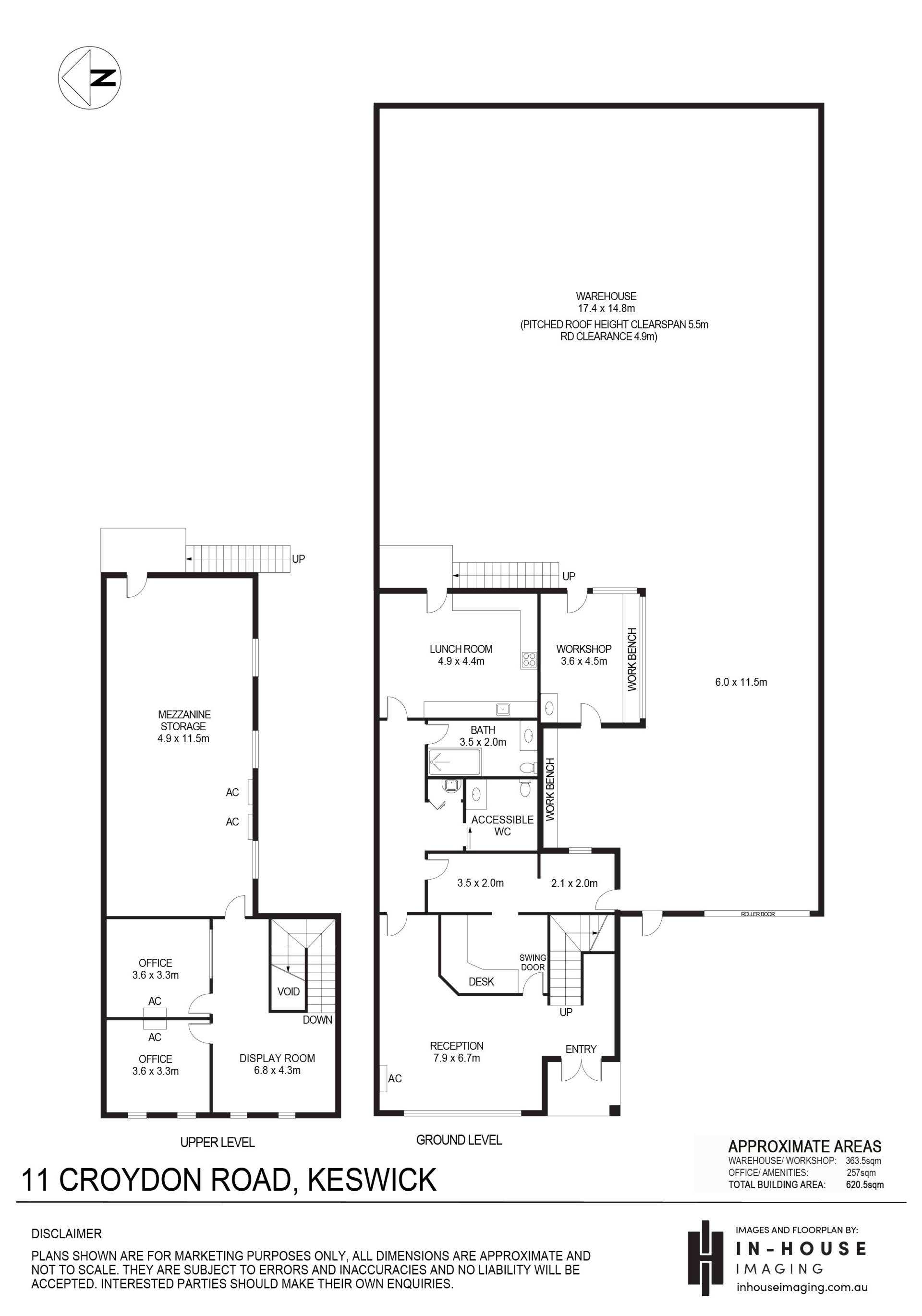
Quick features to note:

  • Warehouse Area: 363sqm*
  • Office/ Amenities/ Mezzanine: 257sqm*
  • Total N.L.A. 620.5sqm*
  • Site Area: 697sqm*
  • Besser Block Brick (circa 1990) construction
  • Updated and extended Office and Amenities; including Male & Unisex/Disabled bathrooms
  • Clearspan peak internal height of warehouse is 5.5m
  • 4.9m High Clearance motorized roller door access 
  • 3 Phase Power
  • Currently tenanted on periodic arrangement (month to month)
  • Passing Rental @ $76,309.00p.a. + GST (plus recoverable outgoings)
  • Perfect for Owner Occupier upon 30 days notice to tenant
  • Lease out the premises at more appropriate market rate & secure a low-risk return while achieving exponential capital growth.
  • Highly sought after city-fringe warehouse location  

*approx.

Contact the listed agents today for further information or to arrange an inspection.

For Sale by Public Auction- Friday the 6th June 2025 @ 11:30am onsite.  

697m2
Address 11 Croydon Rd, Keswick
Price SOLD
Property Type Commercial
Property ID 2580
Commercial Listing Type Sale
Category Industrial/Warehouse, Offices, Other
Land Area 697m2
Office Area 257m2
Warehouse Area 363m2
Total Area 620m2

Agent Details

Nick Mastrangelo photo

Nick Mastrangelo

0401 790 753
View Profile