UNDER CONTRACT

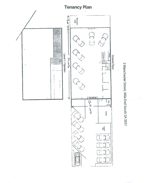
400 SQM (APPROX) OF WAREHOUSE SPACE

679 SQM (APPROX) OF LAND AREA

11 ONSITE CAR PARKING BAYS

SELF CONTAINED TOILETS WITH SHOWER

LARGE MEZZANINE WITH KITCHENETTE

3 PHASE POWER

 

INSPECTION A MUST

 

If you would like to inspect the property, please do not hesitate to contact Jordan House on 0405 488 052 or Mastracorp Landline on (08) 8212 0140.

 

 

Address 5 Manchester St, Mile End South
Price UNDER CONTRACT
Property Type Commercial
Property ID 2581
Category Industrial/Warehouse
Warehouse Area 400m2

Agent Details

Jordan House photo

Jordan House

0405 488 052
View Profile